- Tylko online
Masz pytania? Chciałbyś negocjować cenę
Zadzwoń! 577 575 011
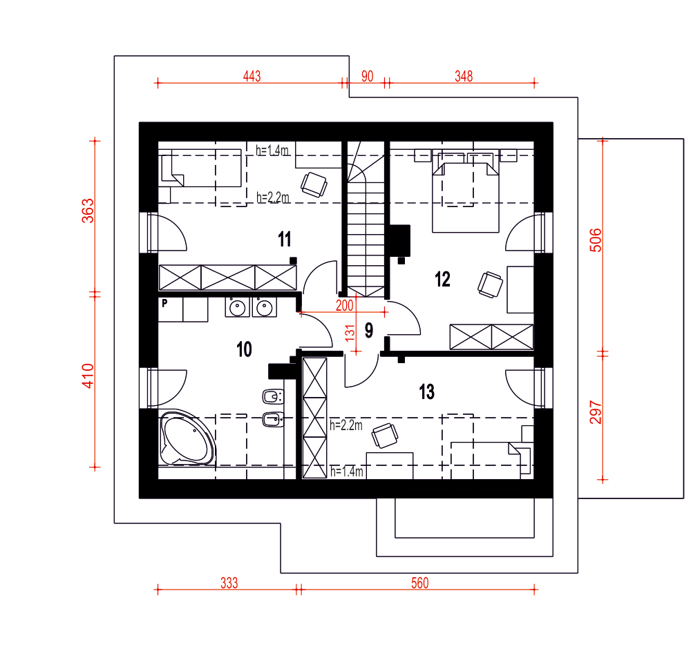
Projekt gotowy Biała to nieduży dom jednorodzinny z poddaszem użytkowym. Nieduża powierzchnia ( ok. 95 m2 - bez garażu) została wykorzystana efektywnie zyskując ustawną przestrzeń. Parter zawiera strefę wspólną, dzienną, gdzie mieści się prostokątny, ustawny salon z jadalnią i wyjściem na zadaszony taras oraz otwartą kuchnię a także schody na druga kondygnację. W centralnym punkcie salonu zaprojektowano komin, do którego można podłączyć kominek równomiernie rozprowadzający ciepło po domu. Miejsce na niewielką garderobę dostępną z holu zostało przewidziane pod schodami. Kuchnia wyposażona została w wygodną spiżarnię, a z wiatrołapu można dostać się do WC i garażu oraz dalej do kotłowni przewidzianej na paliwo gazowe. Na piętrze zaprojektowano trzy sypialnie, oraz duża łazienkę. Biała, to zgrabny domek z zadaszonym wejściem, praktycznym podcieniem za kotłownią oraz zadaszonym wyjściem na taras. W pokojach na piętrze przewidziano portfenetry i dodatkowo okna połaciowe co spowoduje ich doskonałe doświetlenie. Projekt ten szczególnie polecamy na wszystkie tereny zarówno podmiejskie, miejskie i wiejskie ze względu na jej uniwersalną architekturę. Oszczędna forma i optymalnie wykorzystana powierzchnia użytkowa sprawia że domek ten bedzie tani i ekonomiczny w eksploatacji oraz budowie.
