Informujemy, iż nasz sklep internetowy wykorzystuje technologię plików cookies a jednocześnie nie zbiera w sposób automatyczny żadnych informacji, z wyjątkiem informacji zawartych w tych plikach (tzw. „ciasteczkach”).

Sosenka Drewniana wariant D

  • Tylko online

Dane techniczne

powierzchnia
62.17 m²
wysokość
6.68 m
kąt dachu
45 °
szerokość działki
16.78 m
Liczba pokoi
3
Powierzchnia zabudowy
47.71
kondygnacje
parterowe
garaż
bez garażu
dach
dach dwuspadowy
konstrukcja
szkieletowe
zabudowa
domy wolnostojące
piwnica
bez piwnicy
kubatura
256 m³
dostępne odbicie lustrzane
Nie
Pow. użytkowa
62.17 m²
długość działki
13.63 m
Liczba łazienek
1
Pow. netto
62.17
Powierzchnia dachu
107.57 m²

Opis projektu

Wariant szerszy.

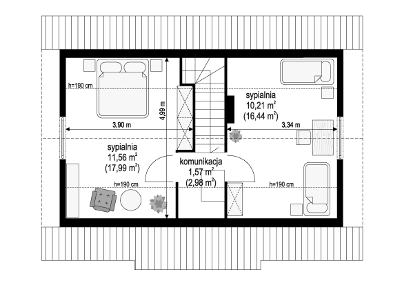
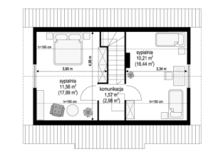
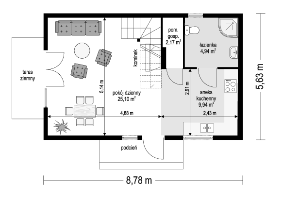
Rzuty

Kondygnacja 1
Kondygnacja 3

Elewacje

Sytuacja

O autorze projektu Sosenka Drewniana wariant D

5 290 zł

Tylko u nas możesz negocjować cenę!
Skorzystaj z tej możliwości.

Lustrzane odbicie: niedostępne.

Masz dodatkowe pytania?
Zadzwoń lub zamów rozmowę.

Zamów rozmowę

Pomożemy Ci dopasować do twoich potrzeb mymarzony projekt, wpisz swój numer telefonu nasz konsultant oddzwoni.

Negocjuj cenę projektu Sosenka Drewniana wariant D

Zapytaj pytanie o projekt Sosenka Drewniana wariant D

Oceny i komentarze

Napisz swoją opinię