- Tylko online
Masz pytania? Chciałbyś negocjować cenę
Zadzwoń! 577 575 011
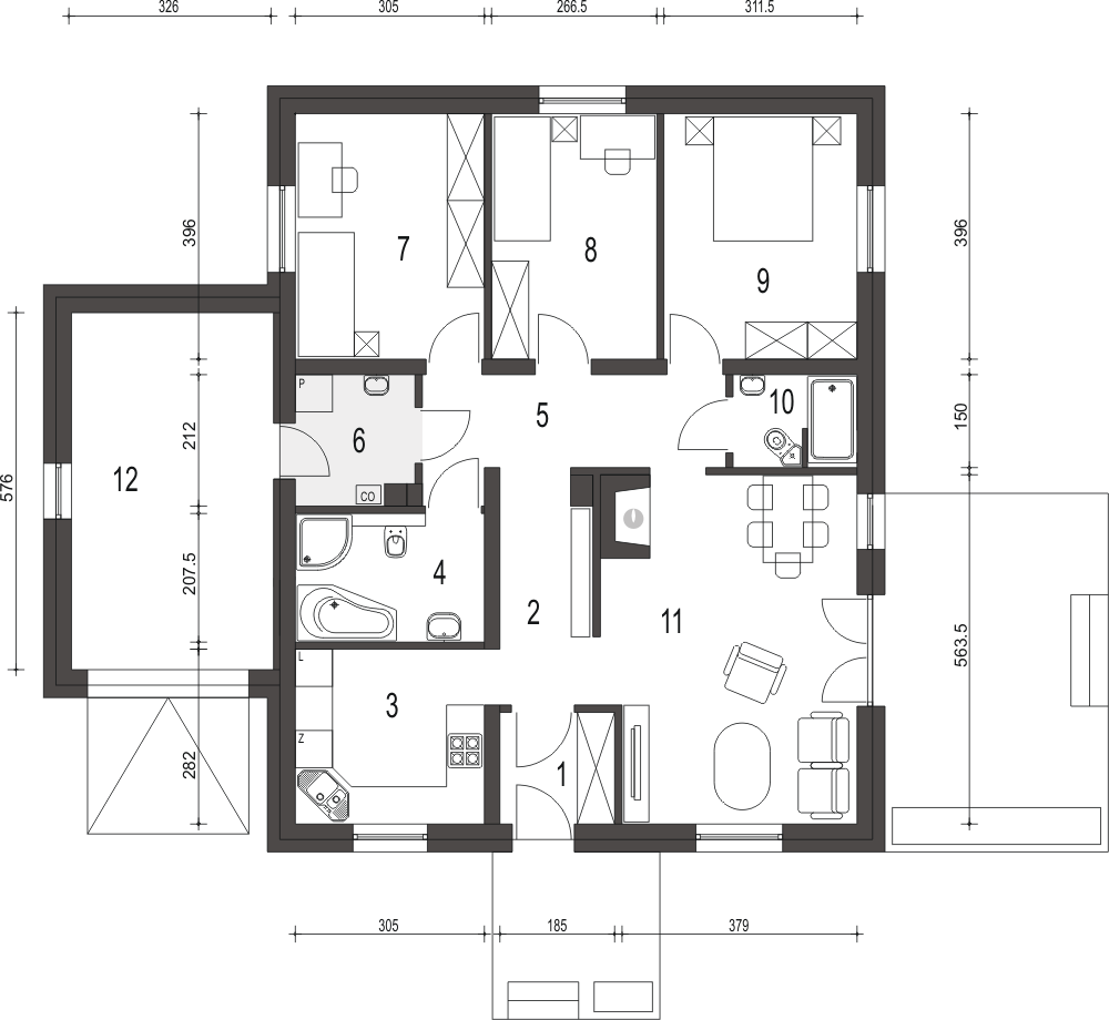
Projekt Bogna to wygodny parterowy dom z garażem dla 4-osobowej rodziny.
