Informujemy, iż nasz sklep internetowy wykorzystuje technologię plików cookies a jednocześnie nie zbiera w sposób automatyczny żadnych informacji, z wyjątkiem informacji zawartych w tych plikach (tzw. „ciasteczkach”).

BRUNEI szkielet drewniany

  • Tylko online

Dane techniczne

powierzchnia
171.93 m²
wysokość
8.08 m
kąt dachu
20 °
szerokość działki
19.78 m
Powierzchnia zabudowy
135.42
kondygnacje
parterowe
garaż
bez garażu
dach
dach wielospadowy
konstrukcja
murowane
zabudowa
domy wolnostojące
piwnica
bez piwnicy
kubatura
743 m³
dostępne odbicie lustrzane
Nie
Pow. użytkowa
171.93 m²
długość działki
21.94 m

Opis projektu

Rzuty

Rzut przyziemia
7 garaż dwustanowiskowy
41.47
1 wiatrołap
3.85
2 komunikacja
10.75
3 kuchnia z jadalnią
10.05
4 salon
27.35
5 kotłownia i pralnia
5.97
6 łazienka
2.83
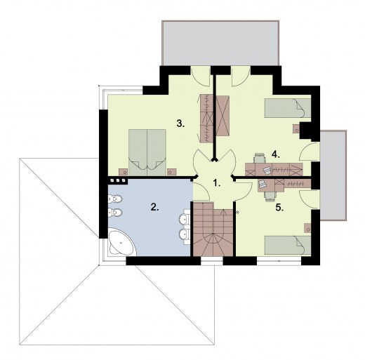
Rzut poddasza
2 łazienka
13.85
1 komunikacja
5.3
3 pokój
19.87
4 pokój
18.2
5 pokój
12.44

O autorze projektu BRUNEI szkielet drewniany

4 099 zł

Tylko u nas możesz negocjować cenę!
Skorzystaj z tej możliwości.

Lustrzane odbicie: niedostępne.

Masz dodatkowe pytania?
Zadzwoń lub zamów rozmowę.

Zamów rozmowę

Pomożemy Ci dopasować do twoich potrzeb mymarzony projekt, wpisz swój numer telefonu nasz konsultant oddzwoni.

Negocjuj cenę projektu BRUNEI szkielet drewniany

Zapytaj pytanie o projekt BRUNEI szkielet drewniany

Oceny i komentarze

Napisz swoją opinię