- Tylko online
Masz pytania? Chciałbyś negocjować cenę
Zadzwoń! 577 575 011
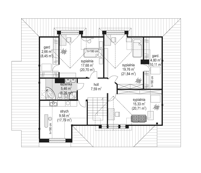
Projekt domu Zacisze 2 to budynek jednorodzinny dla rodziny pięcioosobowej. Zacisze 2 to dom o atrakcyjnej, rozłożystej bryle z łagodnym wielospadowym dachem, w który wkomponowano duże lukarny. Obszerny podcień frontowy i zadaszony taras z kominkiem. Od strony ogrodu chronią przed deszczem lub zbyt ostrym słońcem. W kuchni i jadalni zaprojektowano wykusze, kolumny i drewniane belkowania - nadają one architekturze przysadzisty, stateczny charakter. Atutem domu Zacisze 2 jest duża jadalnia z wyjściem na ogród oraz garaż z dodatkową przestrzenią z boku. Pracownia posiada wersję projektu domu Zacisze 2 w odbiciu lustrzanym oraz inne wersje: projekt domu Zacisze, projekt domu Zacisze 3. Zapraszamy!
