Informujemy, iż nasz sklep internetowy wykorzystuje technologię plików cookies a jednocześnie nie zbiera w sposób automatyczny żadnych informacji, z wyjątkiem informacji zawartych w tych plikach (tzw. „ciasteczkach”).

bukowina 39 dw

  • Tylko online

Dane techniczne

powierzchnia
128.46 m²
wysokość
9.69 m
kąt dachu
45 °
szerokość działki
20.17 m
Liczba pokoi
5
Powierzchnia zabudowy
121.72
kondygnacje
z poddaszem użytkowym
garaż
z garażem 1 st.
dach
dach dwuspadowy
konstrukcja
szkieletowe
zabudowa
domy wolnostojące
piwnica
z piwnicą
kubatura
820 m³
dostępne odbicie lustrzane
Nie
Pow. użytkowa
128.46 m²
długość działki
18.32 m
Liczba łazienek
2
Pow. netto
257.81
Powierzchnia dachu
249 m²

Opis projektu

Dom z bali drewnianych. Podpiwniczony. Duży salon z aneksem kuchennym, kominkiem i wyjściami na taras. Pokój, łazienka, komunikacja, wiatrołap, kotłownia. Na poddaszu trzy pokoje, łazienka, garderoba, komunikacja i balkon. Zwarta bryła budynku i dach dwuspadowy sprzyjają szybkiej i taniej budowie i niskim kosztom eksploatacji.

Rzuty

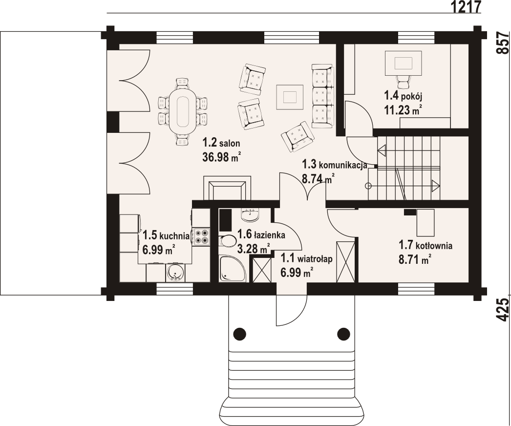
rzut parteru
1.1 wiatrołap
6.99
1.2 salon
36.98
1.3 komunikacja
8.74
1.4 pokój
11.23
1.5 kuchnia
6.99
1.6 łazienka
3.28
1.7 kotłownia
8.71
rzut poddasza
2.1 komunikacja
8.51
2.2 garderoba
6.93
2.3 łazienka
8.51
2.4 pokój
10.83
2.5 pokój
12.36
2.6 pokój
13.99
rzut piwnicy
0.1 garaż
92.06

Elewacje

Sytuacja

Przekrój

O autorze projektu bukowina 39 dw

5 999 zł

Tylko u nas możesz negocjować cenę!
Skorzystaj z tej możliwości.

Lustrzane odbicie: niedostępne.

Masz dodatkowe pytania?
Zadzwoń lub zamów rozmowę.

Zamów rozmowę

Pomożemy Ci dopasować do twoich potrzeb mymarzony projekt, wpisz swój numer telefonu nasz konsultant oddzwoni.

Negocjuj cenę projektu bukowina 39 dw

Zapytaj pytanie o projekt bukowina 39 dw

Oceny i komentarze

Napisz swoją opinię