Informujemy, iż nasz sklep internetowy wykorzystuje technologię plików cookies a jednocześnie nie zbiera w sposób automatyczny żadnych informacji, z wyjątkiem informacji zawartych w tych plikach (tzw. „ciasteczkach”).

Anatol wariant B

  • Tylko online

Dane techniczne

powierzchnia
103.04 m²
wysokość
6.95 m
kąt dachu
35 °
szerokość działki
25.57 m
Powierzchnia zabudowy
166.71
kondygnacje
parterowe
garaż
z garażem 1 st.
dach
dach dwuspadowy
konstrukcja
murowane
zabudowa
domy bliźniacze
piwnica
bez piwnicy
kubatura
653 m³
dostępne odbicie lustrzane
Nie
Pow. użytkowa
103.04 m²
długość działki
18.87 m
Pow. netto
111.41
Powierzchnia dachu
279.14 m²

Opis projektu

Wariant domku ze zmienionym kątem nachylenia dachu na 35 stopni i podniesioną ścianką kolankową o 27 cm.

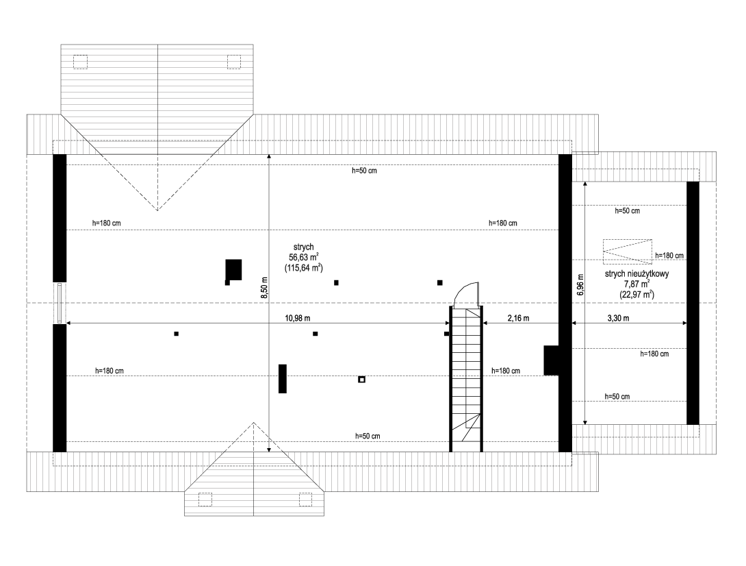
Rzuty

Kondygnacja 1
Kondygnacja 3

Elewacje

Sytuacja

O autorze projektu Anatol wariant B

5 790 zł

Tylko u nas możesz negocjować cenę!
Skorzystaj z tej możliwości.

Lustrzane odbicie: niedostępne.

Masz dodatkowe pytania?
Zadzwoń lub zamów rozmowę.

Zamów rozmowę

Pomożemy Ci dopasować do twoich potrzeb mymarzony projekt, wpisz swój numer telefonu nasz konsultant oddzwoni.

Negocjuj cenę projektu Anatol wariant B

Zapytaj pytanie o projekt Anatol wariant B

Oceny i komentarze

Napisz swoją opinię