- Tylko online
Masz pytania? Chciałbyś negocjować cenę
Zadzwoń! 577 575 011
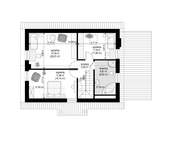
Projekt domu Bajkowy 3 to najnowsza wersja projektu z serii Bajkowych. Ten uroczy domek jednorodzinny przeznaczony jest do całorocznego zamieszkania dla czterech-pięciu osób. Jego prostokątny rzut zamyka dwuspadowy prosty dach nad poddaszem użytkowym, a dobudowany garaż z jednospadowym dachem dopełnia bryłę. Domek nawiązuje stylistyką do wiejskich regionalnych chałup i do tradycji polskiego dworku. Centralnie usytuowany ganek wejściowy wsparty kolumienkami, oraz symetryczne okna po bokach tworzą ładną, spokojną elewację frontową. Dom ma dobrze zachowane proporcje - jest lekki i ma ludzką skalę. Doskonale sprawdzi się zarówno na podmiejskiej działce budowlanej, jak i wśród wiejskiej zabudowy - jako dom wakacyjny. Bajkowy 3 ma prostą konstrukcję - będzie łatwy i niedrogi w budowie. Dzięki zwartej bryle dom będzie również energooszczędny, przez co niedrogi w utrzymaniu. Wnętrze Bajkowego 3 można zamówić w dwóch wariantach: w wariancie podstawowym na parterze mamy duży salon z centralnym kominkiem, kuchnię, łazienkę z pomieszczeniem gospodarczym (pralnia – schowek), oraz garaż i kotłownię. W Wariancie „B” projektu zaprojektowano dodatkowy pokój (gabinet lub sypialnia gościnna) przy wejściu do domu. Na poddaszu mieszczą się trzy sypialnie i łazienka. Kotłownia może być na paliwo stałe lub gazowa. Zapraszamy do zapoznania się z pełną ofertą pracowni MG Projekt: podstawowy projekt domu Bajkowy, z podwójnym garażem, poszerzona wersja z garażem projekt domu Bajkowy 2, komfortowa wersja projekt domu Bajkowy 3, oraz odbicie lustrzane projektu.
