Informujemy, iż nasz sklep internetowy wykorzystuje technologię plików cookies a jednocześnie nie zbiera w sposób automatyczny żadnych informacji, z wyjątkiem informacji zawartych w tych plikach (tzw. „ciasteczkach”).

Bajkowy wariant C

  • Tylko online

Dane techniczne

powierzchnia
104.05 m²
wysokość
7.76 m
kąt dachu
45 °
szerokość działki
20.8 m
Liczba pokoi
5
Powierzchnia zabudowy
100.39
kondygnacje
parterowe
garaż
bez garażu
dach
dach dwuspadowy
konstrukcja
murowane
zabudowa
domy bliźniacze
piwnica
bez piwnicy
kubatura
407 m³
dostępne odbicie lustrzane
Nie
Pow. użytkowa
104.05 m²
długość działki
15.93 m
Liczba łazienek
2
Pow. netto
106.01
Powierzchnia dachu
200.99 m²

Opis projektu

Wariant z wiatą garażową, wykuszem jadalni między kuchnią i salonem, z balkonikiem nad wykuszem na poddaszu. Zapraszamy do zapoznania się z pełną ofertą pracowni MG Projekt: podstawowy projekt domu Bajkowy, z podwójnym garażem, poszerzona wersja z garażem projekt domu Bajkowy 2, komfortowa wersja projekt domu Bajkowy 3, oraz odbicie lustrzane projektu.

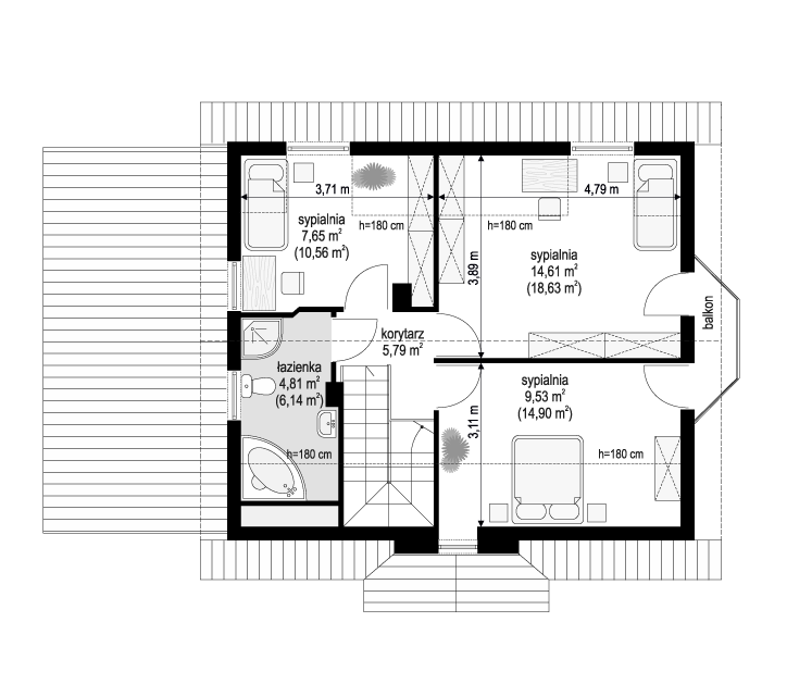
Rzuty

Kondygnacja 1
Kondygnacja 3

Elewacje

Sytuacja

O autorze projektu Bajkowy wariant C

4 660 zł

Tylko u nas możesz negocjować cenę!
Skorzystaj z tej możliwości.

Lustrzane odbicie: niedostępne.

Masz dodatkowe pytania?
Zadzwoń lub zamów rozmowę.

Zamów rozmowę

Pomożemy Ci dopasować do twoich potrzeb mymarzony projekt, wpisz swój numer telefonu nasz konsultant oddzwoni.

Negocjuj cenę projektu Bajkowy wariant C

Zapytaj pytanie o projekt Bajkowy wariant C

Oceny i komentarze

Napisz swoją opinię