- Tylko online
Masz pytania? Chciałbyś negocjować cenę
Zadzwoń! 577 575 011
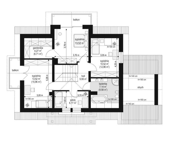
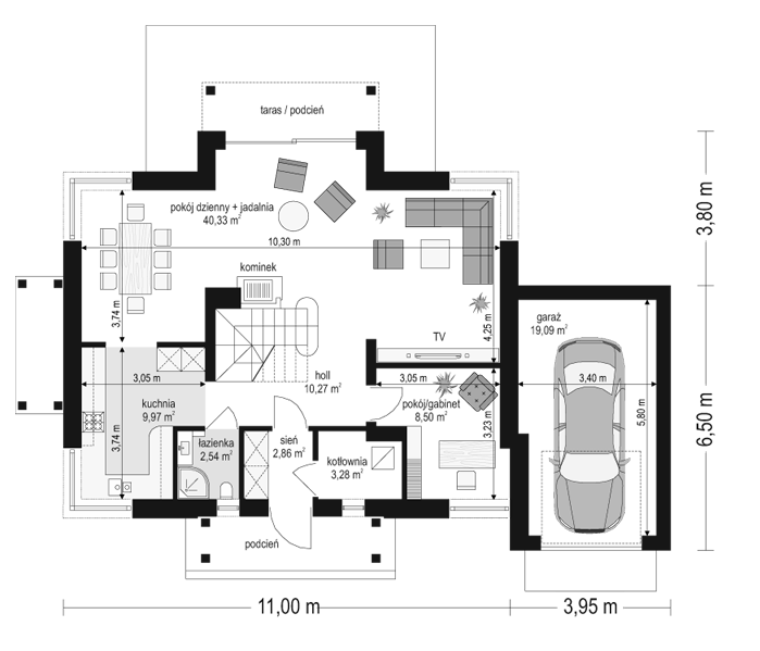
Projekt domu Bartek to dom jednorodzinny dla 4- 5-osobowej rodziny, o ciekawej architekturze, wzorowanej na regionalnych tradycjach. Idealny dla Inwestorów znudzonych typowymi nawiązaniami do polskich dachowców z kolumienkami, szukającymi innej stylistyki. Budynek jednorodzinny z pojedynczym garażem. Projekt domku Bartek architektura i wnętrze Gotowy projekt Bartek to prosta bryła z poddaszem użytkowym, przykryta dwuspadowym dachem, z dobudowanym garażem. Dom ozdabiają od frontu i od ogrodu duże lukarny z ciekawymi drewnianymi detalami. Również szczyt projektu Bartek został ozdobiony ciekawie zaprojektowanym balkonem z daszkiem. W projekcie Bartek nawiązanie do tradycji łączy się z nowoczesnością. Narożne okna projektu Bartek, czy duże przeszklone drzwi na taras dodają nowoczesnego sznytu. Wnętrze projektu Bartek zaplanowano wokół centralnie ustawionych schodów. W projekcie domku Bartek z holu przechodzimy do przestrzeni dziennej składającej się z kącików: telewizyjnego, kominkowego i jadalni. Razem z holem i częściowo otwartą kuchnią salon tworzy bardzo ładną wspólną powierzchnię. Na parterze projektu Bartek mieści się też kotłownia, łazienka, dodatkowy pokój i dobudowany garaż. Na poddaszu projektu Bartek znajdują się trzy sypialnie, duża łazienka, garderoba rodziców i dodatkowy niewielki pokój do pracy. Projekt Bartek dzięki zwartości bryły i zastosowanym materiałom jest energooszczędny. Bartek będzie niedrogi w budowie i późniejszej eksploatacji. Dom można zbudować na działce o wymiarach: szerokość min 22,05 m i długość min 18,40 m. Projekt Bartek z pracowni MGProjekt można zamówić też w wersji odbicia lustrzanego.
