- Tylko online
Masz pytania? Chciałbyś negocjować cenę
Zadzwoń! 577 575 011
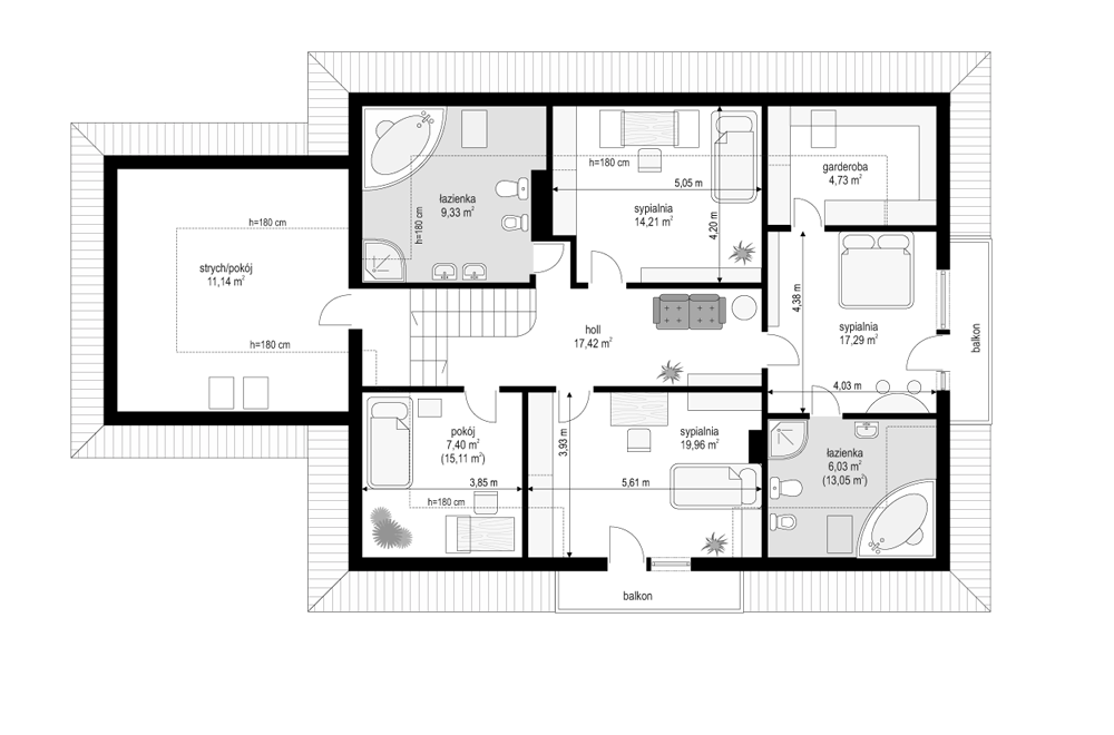
Projekt domu Benedykt to duży, reprezentacyjny dom jednorodzinny nawiązujący do architektury dworkowej - jednak w bardziej nowoczesnym ujęciu. Szerokie, centralnie umieszczone wejście domu akcentuje osiowy podział elewacji frontowej. Bryła została przykryta dużym, wielospadowym dachem, poprzecinanym ciekawymi lukarnami z balkonami. We wnętrzu domu Benedykt zaplanowano obszerny hol z salonem, wydzieloną jadalnią i dużą zamykaną kuchnię. Na parterze zaprojektowano gabinet i pomieszczenia techniczne oraz dwustanowiskowy garaż. Na poddaszu - sypialnię rodziców z własną garderobą i łazienką oraz trzy sypialnie dzieci i łazienkę. W projekcie domu Benedykt strych nad garażem może zostać zaadoptowany na dodatkowe pomieszczenie gospodarcze. Zapraszamy do zapoznania się z pełną ofertą pracowni MG Projekt: projekt domu Benedykt, projekt domu Benedykt 2, projekt domu Benedykt 3, projekt domu Benedykt 4, projekt domu Benedykt 5, projekt domu Benedykt Bliźniak.
