Informujemy, iż nasz sklep internetowy wykorzystuje technologię plików cookies a jednocześnie nie zbiera w sposób automatyczny żadnych informacji, z wyjątkiem informacji zawartych w tych plikach (tzw. „ciasteczkach”).

D102C - WT2021

  • Tylko online

Dane techniczne

powierzchnia
125.2 m²
wysokość
7.93 m
kąt dachu
40 °
szerokość działki
14.1 m
Liczba pokoi
3
Powierzchnia zabudowy
105.46
kondygnacje
z poddaszem użytkowym
garaż
z garażem 1 st.
dach
dach dwuspadowy
konstrukcja
murowane
zabudowa
domy wolnostojące
piwnica
bez piwnicy
kubatura
665 m³
dostępne odbicie lustrzane
Nie
Pow. użytkowa
125.2 m²
długość działki
24.11 m
Liczba łazienek
3

Opis projektu

Gotowy projekt D102C to nowoczesny dom jednorodzinny z poddaszem przeznaczony dla czteroosobowej rodziny. Dom idealny na wąska działkę. Prosta forma o nieskomplikowanej konstrukcji zaprojektowana na planie prostokąta zwieńczona dwuspadowym dachem pozwoli na szybką i ekonomiczną budowę oraz późniejszą eksploatację. Białą kolorystykę urozmaicają drewniane wykończenia elewacji. Zadaszony taras wraz z balkonem stanowią ciekawy i nowoczesny element bryły budynku. Projekt domu jednorodzinnego D102A jest doskonałą propozycją dla rodzin preferujących rozkład pomieszczeń podzielony na cześć dzienną i nocną, które cenią funkcjonalność, ale także elegancję i nowoczesność.

Rzuty

Parter
1 przedsionek
5
2 korytarz
6.58
3 łazienka
4.09
4 kuchnia
9.44
5 spiżarnia
1.11
6 salon+jadalnia
27.01
7 pom. techniczne
6.88
8 garaż
17.2
9 taras 1
5.29
10 taras 2
13.46
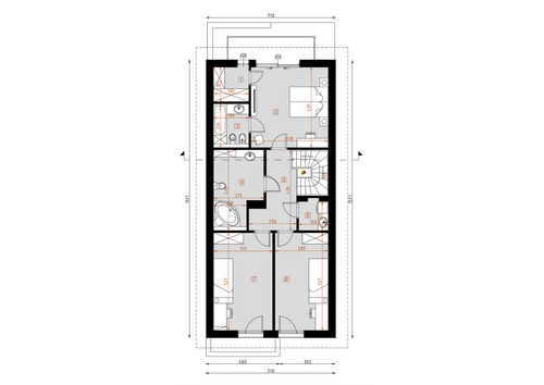
Poddasze
1 korytarz
8.49
2 sypialnia
16.26
3 garderoba
2.73
4 łazienka
3.44
5 łazienka
8.3
6 pokój 1
13.97
7 pokój 2
13.38
8 pralnia
1.99
9 balkon
4.65

Elewacje

Sytuacja

O autorze projektu D102C - WT2021

4 399 zł

Tylko u nas możesz negocjować cenę!
Skorzystaj z tej możliwości.

Lustrzane odbicie: niedostępne.

Masz dodatkowe pytania?
Zadzwoń lub zamów rozmowę.

Zamów rozmowę

Pomożemy Ci dopasować do twoich potrzeb mymarzony projekt, wpisz swój numer telefonu nasz konsultant oddzwoni.

Negocjuj cenę projektu D102C - WT2021

Zapytaj pytanie o projekt D102C - WT2021

Oceny i komentarze

Napisz swoją opinię