Informujemy, iż nasz sklep internetowy wykorzystuje technologię plików cookies a jednocześnie nie zbiera w sposób automatyczny żadnych informacji, z wyjątkiem informacji zawartych w tych plikach (tzw. „ciasteczkach”).

D114

  • Tylko online

Dane techniczne

powierzchnia
122.94 m²
wysokość
3.96 m
kąt dachu
1 °
szerokość działki
16 m
Liczba pokoi
2
Powierzchnia zabudowy
172.69
kondygnacje
parterowe
garaż
bez garażu
dach
dach płaski
konstrukcja
murowane
zabudowa
domy wolnostojące
piwnica
bez piwnicy
kubatura
630 m³
dostępne odbicie lustrzane
Nie
Pow. użytkowa
122.94 m²
długość działki
27 m
Liczba łazienek
2

Opis projektu

Dom D114 to przykład nowoczesnej parterowej willi miejskiej . Prosta, czysta bryła oraz harmonijny podział w elewacjach czynią ten dom prostym i eleganckim. Dzięki temu koszty poniesione na budowę zostały mocno zredukowane. Dodatkowym założeniem przyjętym przy projekcie budynku było harmonijne wpisanie się zarówno w naturalny krajobraz jak również w krajobraz miejski. Jest to budynek parterowy kryty dachem płaskim. W elewacji budynku poprzez materiał zaakcentowano wyraźnie, strefę wejściową. W bryle budynku oddzielono także funkcję mieszkalną dzienną od nocnej, jak również strefę mieszkalną od strefy gospodarczej.

Rzuty

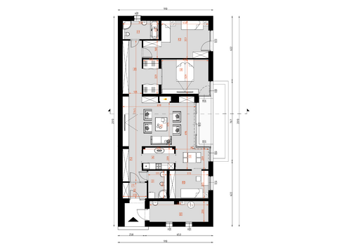
Parter
1 przedsionek
3.48
2 hall
6.23
3 łazienka
4.68
4 kuchnia
6.14
5 jadalnia
6.18
6 pom.techniczne
11.07
7 salon
31.78
8 korytarz
14.76
9 sypialnia
14.78
10 pokój
9.88
11 łazienka
6.1
12 pokój
18.93
13 taras 1
17
14 taras 2
5.21

Elewacje

Sytuacja

O autorze projektu D114

3 799 zł

Tylko u nas możesz negocjować cenę!
Skorzystaj z tej możliwości.

Lustrzane odbicie: niedostępne.

Masz dodatkowe pytania?
Zadzwoń lub zamów rozmowę.

Zamów rozmowę

Pomożemy Ci dopasować do twoich potrzeb mymarzony projekt, wpisz swój numer telefonu nasz konsultant oddzwoni.

Negocjuj cenę projektu D114

Zapytaj pytanie o projekt D114

Oceny i komentarze

Napisz swoją opinię