Informujemy, iż nasz sklep internetowy wykorzystuje technologię plików cookies a jednocześnie nie zbiera w sposób automatyczny żadnych informacji, z wyjątkiem informacji zawartych w tych plikach (tzw. „ciasteczkach”).

D118 - WT2021

  • Tylko online

Dane techniczne

powierzchnia
140.49 m²
wysokość
7.13 m
kąt dachu
1 °
szerokość działki
19.58 m
Liczba pokoi
5
Powierzchnia zabudowy
120.27
kondygnacje
piętrowe
garaż
z garażem 1 st.
dach
dach płaski
konstrukcja
murowane
zabudowa
domy wolnostojące
piwnica
bez piwnicy
kubatura
692 m³
dostępne odbicie lustrzane
Nie
Pow. użytkowa
140.49 m²
długość działki
19.93 m
Liczba łazienek
2

Opis projektu

Dom D118 jest odpowiedzią na potrzeby naszych klientów, szukających nowoczesnej willi miejskiej z garażem. Prosta, czysta bryła oraz harmonijny podział w elewacjach czynią ten dom klasycznie eleganckim. Podstawowym założeniem przyjętym przy projekcie budynku było harmonijne wpisanie się w miejski krajobraz. Jest to budynek piętrowy kryty płaskim dachem dachem. W elewacji budynku poprzez materiał zaakcentowano wyraźnie, strefę wejściową. W bryle budynku oddzielono także funkcję mieszkalną dzienną od nocnej, jak również strefę mieszkalną od garażu i strefy gospodarczej.  

Rzuty

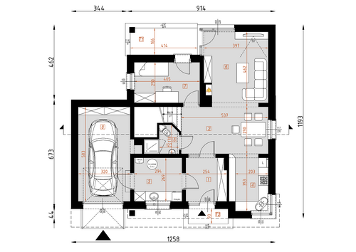
Parter
1 przedsionek
6.76
2 hall / jadalnia
15.57
3 pom. techniczne
7.91
4 kuchnia
8.16
5 łazienka
2.91
6 salon
17.76
7 pokój
10.14
8 garaż
18.65
10 taras 1
8.87
11 taras 2
3.86
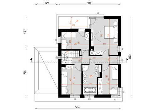
Piętro
1 korytarz
7.78
2 pokój
12.77
3 łazienka
10.05
4 pokój
11.38
5 sypialnia
20.86
6 pokój
11.38
7 schody
4.57
8 balkon
7.81

Elewacje

Sytuacja

O autorze projektu D118 - WT2021

4 599 zł

Tylko u nas możesz negocjować cenę!
Skorzystaj z tej możliwości.

Lustrzane odbicie: niedostępne.

Masz dodatkowe pytania?
Zadzwoń lub zamów rozmowę.

Zamów rozmowę

Pomożemy Ci dopasować do twoich potrzeb mymarzony projekt, wpisz swój numer telefonu nasz konsultant oddzwoni.

Negocjuj cenę projektu D118 - WT2021

Zapytaj pytanie o projekt D118 - WT2021

Oceny i komentarze

Napisz swoją opinię