Informujemy, iż nasz sklep internetowy wykorzystuje technologię plików cookies a jednocześnie nie zbiera w sposób automatyczny żadnych informacji, z wyjątkiem informacji zawartych w tych plikach (tzw. „ciasteczkach”).

D126 - WT2021

  • Tylko online

Dane techniczne

powierzchnia
77.31 m²
wysokość
7.9 m
kąt dachu
45 °
szerokość działki
19.52 m
Liczba pokoi
2
Powierzchnia zabudowy
58.74
kondygnacje
z poddaszem użytkowym
garaż
wiata
dach
dach dwuspadowy
konstrukcja
z bali
zabudowa
domy wolnostojące
piwnica
bez piwnicy
kubatura
373 m³
dostępne odbicie lustrzane
Nie
Pow. użytkowa
77.31 m²
długość działki
14.64 m
Liczba łazienek
2

Opis projektu

D126 to dom mieszkalny jednorodzinny w technologii drewnianej - bal - płazy drewniane. Idealny dla 4-5-osobowej rodziny. Może również pełnić funkcję domku letniskowego. Prosta bryła budynku oraz nieskomplikowana konstrukcja wpływają na niższe koszty budowy. Bardzo funkcjonalny podział pomieszczeń z oddzielną strefą techniczną, strefą dzienną na parterze i nocną na poddaszu. Dodatkowo wiata połączona z zadaszeniem wejścia tworząc galerię.

Rzuty

Parter
1 przedsionek
5.25
2 hall
5.09
3 salon
15.45
4 kuchnia
7
5 spiżarnia
1.32
6 łazienka
5.08
7 kotłownia
5.1
8 taras 1
9.68
9 taras 2
7.02
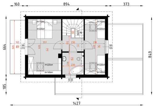
Poddasze
1 korytarz
3.51
2 łazienka
5.18
3 sypialnia
15.6
4 pokój
9.61
5 schody
4.22
6 balkon
9.29

Elewacje

Sytuacja

O autorze projektu D126 - WT2021

4 299 zł

Tylko u nas możesz negocjować cenę!
Skorzystaj z tej możliwości.

Lustrzane odbicie: niedostępne.

Masz dodatkowe pytania?
Zadzwoń lub zamów rozmowę.

Zamów rozmowę

Pomożemy Ci dopasować do twoich potrzeb mymarzony projekt, wpisz swój numer telefonu nasz konsultant oddzwoni.

Negocjuj cenę projektu D126 - WT2021

Zapytaj pytanie o projekt D126 - WT2021

Oceny i komentarze

Napisz swoją opinię