Informujemy, iż nasz sklep internetowy wykorzystuje technologię plików cookies a jednocześnie nie zbiera w sposób automatyczny żadnych informacji, z wyjątkiem informacji zawartych w tych plikach (tzw. „ciasteczkach”).

D128A - WT2021

  • Tylko online

Dane techniczne

powierzchnia
134.98 m²
wysokość
8.2 m
kąt dachu
40 °
szerokość działki
18.35 m
Liczba pokoi
4
Powierzchnia zabudowy
101.96
kondygnacje
z poddaszem użytkowym
garaż
bez garażu
dach
dach dwuspadowy
konstrukcja
murowane
zabudowa
domy wolnostojące
piwnica
bez piwnicy
kubatura
626 m³
dostępne odbicie lustrzane
Nie
Pow. użytkowa
134.98 m²
długość działki
19.3 m
Liczba łazienek
2

Opis projektu

Dom jednorodzinny parterowy z użytkowym poddaszem. Idealny dla 4-5-osobowej rodziny, niepodpiwniczony. Prosta bryła budynku oraz nieskomplikowana konstrukcja wpływają na niższe koszty budowy. Bardzo funkcjonalny podział pomieszczeń z oddzielną strefą techniczną, strefą dzienną na parterze i nocną na poddaszu.

Rzuty

Parter
1 przedsionek
3.47
2 hall
10.39
3 kuchnia
10.35
4 salon/jadalnia
26.08
5 gabinet
10.59
6 łazienka
6.55
7 pom.gospodarcze
10.16
8 taras 1
9.7
9 taras 2
25.07
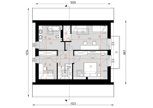
Poddasze
1 korytarz
4.1
2 sypialnia
15.42
3 pokój
16.17
4 łazienka
9.05
5 pokój
8.27
6 schody
4.38
7 balkon
5.69

Elewacje

Sytuacja

O autorze projektu D128A - WT2021

4 699 zł

Tylko u nas możesz negocjować cenę!
Skorzystaj z tej możliwości.

Lustrzane odbicie: niedostępne.

Masz dodatkowe pytania?
Zadzwoń lub zamów rozmowę.

Zamów rozmowę

Pomożemy Ci dopasować do twoich potrzeb mymarzony projekt, wpisz swój numer telefonu nasz konsultant oddzwoni.

Negocjuj cenę projektu D128A - WT2021

Zapytaj pytanie o projekt D128A - WT2021

Oceny i komentarze

Napisz swoją opinię