Informujemy, iż nasz sklep internetowy wykorzystuje technologię plików cookies a jednocześnie nie zbiera w sposób automatyczny żadnych informacji, z wyjątkiem informacji zawartych w tych plikach (tzw. „ciasteczkach”).

D134 - WT2021

  • Tylko online

Dane techniczne

powierzchnia
96.01 m²
wysokość
8.56 m
kąt dachu
45 °
szerokość działki
17.57 m
Liczba pokoi
3
Powierzchnia zabudowy
69.5
kondygnacje
z poddaszem użytkowym
garaż
wiata
dach
dach dwuspadowy
konstrukcja
z bali
zabudowa
domy wolnostojące
piwnica
bez piwnicy
kubatura
490.4 m³
dostępne odbicie lustrzane
Nie
Pow. użytkowa
96.01 m²
długość działki
18.05 m
Liczba łazienek
2

Opis projektu

D134 Dom mieszkalny jednorodzinny w technologii drewnianej - bal - płazy drewniane. Idealny dla 4-5-osobowej rodziny. Może również pełnić funkcję domku letniskowego. Prosta bryła budynku oraz nieskomplikowana konstrukcja wpływają na niższe koszty budowy. Bardzo funkcjonalny podział pomieszczeń z oddzielną strefą techniczną, strefą dzienną na parterze i nocną na poddaszu. Dodatkowo wiata.

Rzuty

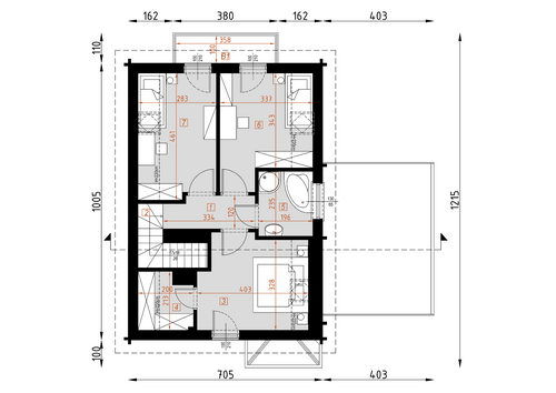
Parter
1 przedsionek
3.63
2 wc
3.01
3 hall
5.36
4 kuchnia
5.41
5 salon+jadalnia
29.31
6 kotłownia
3.64
7 taras 1
10.75
8 taras 2
4.68
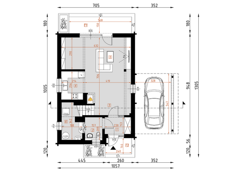
Poddasze
1 korytarz
3.76
1 schody
3.55
1 sypialnia
12.06
1 garderoba
3.05
1 łazienka
4.61
1 pokój
11.36
1 pokój
10.9
8 balkon
3.6

Elewacje

Sytuacja

O autorze projektu D134 - WT2021

4 149 zł

Tylko u nas możesz negocjować cenę!
Skorzystaj z tej możliwości.

Lustrzane odbicie: niedostępne.

Masz dodatkowe pytania?
Zadzwoń lub zamów rozmowę.

Zamów rozmowę

Pomożemy Ci dopasować do twoich potrzeb mymarzony projekt, wpisz swój numer telefonu nasz konsultant oddzwoni.

Negocjuj cenę projektu D134 - WT2021

Zapytaj pytanie o projekt D134 - WT2021

Oceny i komentarze

Napisz swoją opinię