Informujemy, iż nasz sklep internetowy wykorzystuje technologię plików cookies a jednocześnie nie zbiera w sposób automatyczny żadnych informacji, z wyjątkiem informacji zawartych w tych plikach (tzw. „ciasteczkach”).

D137A - WT2021

  • Tylko online

Dane techniczne

powierzchnia
61.88 m²
wysokość
7.15 m
kąt dachu
40 °
szerokość działki
17.59 m
Liczba pokoi
2
Powierzchnia zabudowy
85.63
kondygnacje
parterowe
garaż
bez garażu
dach
dach dwuspadowy
konstrukcja
murowane
zabudowa
domy wolnostojące
piwnica
bez piwnicy
kubatura
484 m³
dostępne odbicie lustrzane
Nie
Pow. użytkowa
61.88 m²
długość działki
17.23 m
Liczba łazienek
1

Opis projektu

Dom D137A jest skierowany do naszych klientów, szukających niewielkiego, nowoczesnego domu parterowego. Prosta, czysta bryła oraz harmonijny podział w elewacjach czynią ten dom klasycznie eleganckim. Podstawowym założeniem przyjętym przy projekcie budynku było stworzenie funkcjonalnego i ciekawego wnętrza na niewielkim metrażu. Jest to budynek parterowy kryty dwuspadowym dachem z możliwością adaptacji poddasza. W elewacji budynku poprzez materiał zaakcentowano wyraźnie, strefę wejściową. W bryle budynku oddzielono także funkcję mieszkalną dzienną od nocnej, jak również strefę mieszkalną i strefy gospodarczej.  

Rzuty

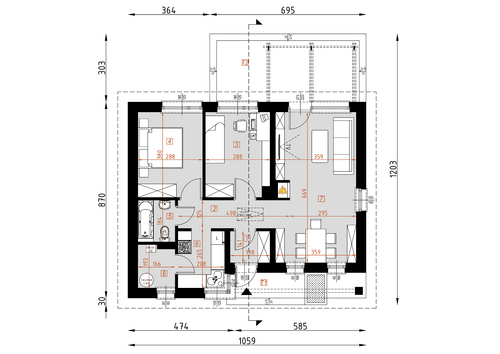
Parter
1 przedsionek
2.5
2 hall
5.42
3 pokój
10.75
4 sypialnia
10.87
5 łazienka
3.07
6 kuchnia
5.27
7 salon / jadalnia
24
8 kotłownia
3.07
9 taras 1
4.52
10 taras 2
21.01
Poddasze
1 strych do adaptacji
26.95

Elewacje

Sytuacja

O autorze projektu D137A - WT2021

3 499 zł

Tylko u nas możesz negocjować cenę!
Skorzystaj z tej możliwości.

Lustrzane odbicie: niedostępne.

Masz dodatkowe pytania?
Zadzwoń lub zamów rozmowę.

Zamów rozmowę

Pomożemy Ci dopasować do twoich potrzeb mymarzony projekt, wpisz swój numer telefonu nasz konsultant oddzwoni.

Negocjuj cenę projektu D137A - WT2021

Zapytaj pytanie o projekt D137A - WT2021

Oceny i komentarze

Napisz swoją opinię