Informujemy, iż nasz sklep internetowy wykorzystuje technologię plików cookies a jednocześnie nie zbiera w sposób automatyczny żadnych informacji, z wyjątkiem informacji zawartych w tych plikach (tzw. „ciasteczkach”).

D138 - wersja drewniana WT2021

  • Tylko online

Dane techniczne

powierzchnia
50.86 m²
wysokość
6.95 m
kąt dachu
40 °
szerokość działki
15.26 m
Liczba pokoi
1
Powierzchnia zabudowy
68.21
kondygnacje
parterowe
garaż
bez garażu
dach
dach dwuspadowy
konstrukcja
szkieletowe
zabudowa
domy wolnostojące
piwnica
bez piwnicy
kubatura
364 m³
dostępne odbicie lustrzane
Nie
Pow. użytkowa
50.86 m²
długość działki
16.26 m
Liczba łazienek
1

Opis projektu

Dom D138 jest skierowany do naszych klientów, szukających niewielkiego, nowoczesnego domu parterowego. Prosta, czysta bryła oraz harmonijny podział w elewacjach czynią ten dom klasycznie eleganckim. Podstawowym założeniem przyjętym przy projekcie budynku było stworzenie funkcjonalnego i ciekawego wnętrza na niewielkim metrażu. Jest to budynek parterowy kryty dwuspadowym dachem z możliwością adaptacji poddasza. W elewacji budynku poprzez materiał zaakcentowano wyraźnie, strefę wejściową. W bryle budynku oddzielono także funkcję mieszkalną dzienną od nocnej, jak również strefę mieszkalną i strefy gospodarczej.

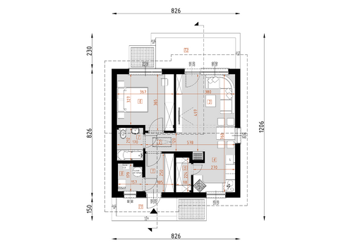
Rzuty

Parter
1 przedsionek
4.64
2 hol
2.37
3 salon + jadalnia
18.89
4 kuchnia
6.53
5 spiżarnia
2.15
6 pokój sypialny
12.72
7 łazienka
3.56
8 pom. techniczne
2.69
9 taras 1
6.26
10 taras 2
12.73
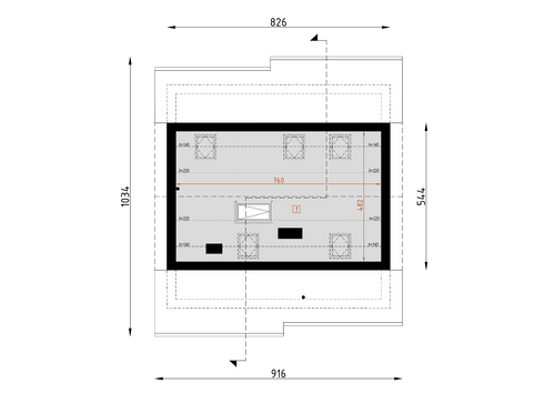
Poddasze
1 strych do adaptacji
19.59

Elewacje

Sytuacja

O autorze projektu D138 - wersja drewniana WT2021

4 049 zł

Tylko u nas możesz negocjować cenę!
Skorzystaj z tej możliwości.

Lustrzane odbicie: niedostępne.

Masz dodatkowe pytania?
Zadzwoń lub zamów rozmowę.

Zamów rozmowę

Pomożemy Ci dopasować do twoich potrzeb mymarzony projekt, wpisz swój numer telefonu nasz konsultant oddzwoni.

Negocjuj cenę projektu D138 - wersja drewniana WT2021

Zapytaj pytanie o projekt D138 - wersja drewniana WT2021

Oceny i komentarze

Napisz swoją opinię