Informujemy, iż nasz sklep internetowy wykorzystuje technologię plików cookies a jednocześnie nie zbiera w sposób automatyczny żadnych informacji, z wyjątkiem informacji zawartych w tych plikach (tzw. „ciasteczkach”).

D139 - WT2021

  • Tylko online

Dane techniczne

powierzchnia
53.32 m²
wysokość
7.1 m
kąt dachu
40 °
szerokość działki
17.29 m
Liczba pokoi
1
Powierzchnia zabudowy
82.94
kondygnacje
parterowe
garaż
bez garażu
dach
dach dwuspadowy
konstrukcja
murowane
zabudowa
domy wolnostojące
piwnica
bez piwnicy
kubatura
435 m³
dostępne odbicie lustrzane
Nie
Pow. użytkowa
53.32 m²
długość działki
16.98 m
Liczba łazienek
1

Opis projektu

Nieduży parterowy dom zaprojektowany w technologii tradycyjnej z możliwością dobudowania garażu lub wiaty. Może też pełnić funkcję wygodnego domu letniego. Istnieje możliwość adaptacji strychu na cele mieszkalne.

Rzuty

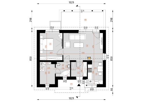
Parter
1 przedsionek
5.05
2 kuchnia
7.47
3 salon
22.96
4 łazienka
4.43
5 sypialnia
13.41
6 kotłownia
7.08
7 taras 1
5.8
8 taras 2
20.12
Poddasze
1 poddasze nieużytkowe
29.48

Elewacje

Sytuacja

O autorze projektu D139 - WT2021

3 599 zł

Tylko u nas możesz negocjować cenę!
Skorzystaj z tej możliwości.

Lustrzane odbicie: niedostępne.

Masz dodatkowe pytania?
Zadzwoń lub zamów rozmowę.

Zamów rozmowę

Pomożemy Ci dopasować do twoich potrzeb mymarzony projekt, wpisz swój numer telefonu nasz konsultant oddzwoni.

Negocjuj cenę projektu D139 - WT2021

Zapytaj pytanie o projekt D139 - WT2021

Oceny i komentarze

2019-06-23

Pytanie o strych

Dzień dobry. Chciałem zapytać, czy jeśli poddasze jest do adaptacji, to gdzie będą schody? Bo z wygospodarowaniem miejsca chyba nie będzie tak latwo. Jeden dodatkowypokój gościnny byłby idealny.

Napisz swoją opinię