Informujemy, iż nasz sklep internetowy wykorzystuje technologię plików cookies a jednocześnie nie zbiera w sposób automatyczny żadnych informacji, z wyjątkiem informacji zawartych w tych plikach (tzw. „ciasteczkach”).

D142 - WT2021 wersja drewniana

  • Tylko online

Dane techniczne

powierzchnia
54.69 m²
wysokość
6.03 m
kąt dachu
30 °
szerokość działki
15.16 m
Liczba pokoi
1
Powierzchnia zabudowy
74.78
kondygnacje
parterowe
garaż
bez garażu
dach
dach dwuspadowy
konstrukcja
szkieletowe
zabudowa
domy wolnostojące
piwnica
bez piwnicy
kubatura
331 m³
dostępne odbicie lustrzane
Nie
Pow. użytkowa
54.69 m²
długość działki
17.2 m
Liczba łazienek
1

Opis projektu

Dom D142 jest skierowany do naszych klientów, szukających niewielkiego, nowoczesnego domu parterowego. Prosta, czysta bryła oraz harmonijny podział w elewacjach czynią ten dom klasycznie eleganckim. Podstawowym założeniem przyjętym przy projekcie budynku było stworzenie funkcjonalnego i ciekawego wnętrza na niewielkim metrażu. Jest to budynek parterowy kryty dwuspadowym dachem z możliwością adaptacji poddasza. W elewacji budynku poprzez materiał zaakcentowano wyraźnie, strefę wejściową. W bryle budynku oddzielono także funkcję mieszkalną dzienną od nocnej, jak również strefę mieszkalną i strefy gospodarczej.

Rzuty

Parter
1 przedsionek
5.78
2 kuchnia/spiżarnia
10.47
3 łazienka
3.42
4 sypialnia
12.49
6 salon/jadalnia
22.06
7 kotłownia
4.89
7 taras 1
13.81
8 taras 2
5.08
Poddasze
1 strych nieużytkowy
9.27

Elewacje

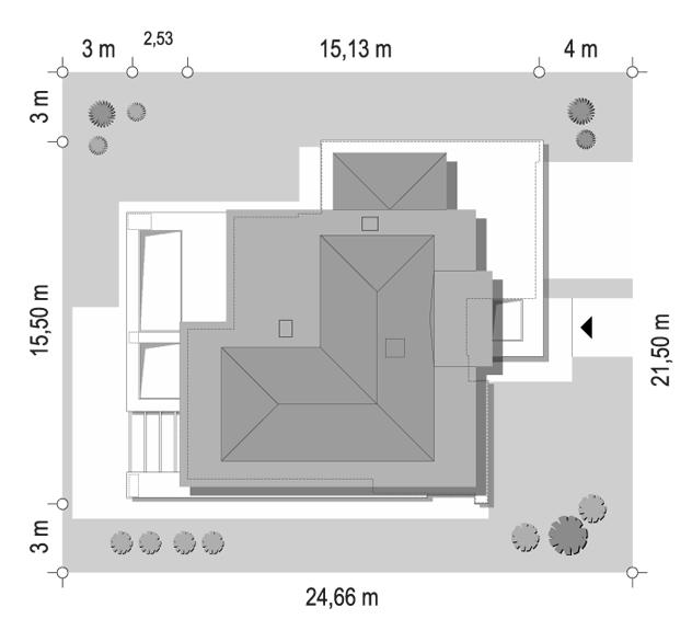
Sytuacja

O autorze projektu D142 - WT2021 wersja drewniana

4 049 zł

Tylko u nas możesz negocjować cenę!
Skorzystaj z tej możliwości.

Lustrzane odbicie: niedostępne.

Masz dodatkowe pytania?
Zadzwoń lub zamów rozmowę.

Zamów rozmowę

Pomożemy Ci dopasować do twoich potrzeb mymarzony projekt, wpisz swój numer telefonu nasz konsultant oddzwoni.

Negocjuj cenę projektu D142 - WT2021 wersja drewniana

Zapytaj pytanie o projekt D142 - WT2021 wersja drewniana

Oceny i komentarze

Napisz swoją opinię