Informujemy, iż nasz sklep internetowy wykorzystuje technologię plików cookies a jednocześnie nie zbiera w sposób automatyczny żadnych informacji, z wyjątkiem informacji zawartych w tych plikach (tzw. „ciasteczkach”).

D142A - WT2021

  • Tylko online

Dane techniczne

powierzchnia
79.37 m²
wysokość
7.82 m
kąt dachu
40 °
szerokość działki
17.46 m
Liczba pokoi
3
Powierzchnia zabudowy
72
kondygnacje
z poddaszem użytkowym
garaż
wiata
dach
dach dwuspadowy
konstrukcja
murowane
zabudowa
domy wolnostojące
piwnica
bez piwnicy
kubatura
525 m³
dostępne odbicie lustrzane
Nie
Pow. użytkowa
79.37 m²
długość działki
17 m
Liczba łazienek
2

Opis projektu

  Dom D142A jest skierowany do naszych klientów, szukających niewielkiego, nowoczesnego domu parterowego z poddaszem użytkowym i wiatą garażową. Prosta, czysta bryła oraz harmonijny podział w elewacjach czynią ten dom klasycznie eleganckim. Podstawowym założeniem przyjętym przy projekcie budynku było stworzenie funkcjonalnego i ciekawego wnętrza na niewielkim metrażu. Jest to budynek parterowy kryty dwuspadowym dachem z możliwością adaptacji poddasza. W elewacji budynku poprzez materiał zaakcentowano wyraźnie, strefę wejściową. W bryle budynku oddzielono także funkcję mieszkalną dzienną od nocnej, jak również strefę mieszkalną i strefy gospodarczej.  

Rzuty

Parter
1 przedsionek
4.87
2 kuchnia
6.83
3 spiżarnia
0.95
4 łazienka
3.05
5 sypialnia
10.9
6 salon/jadalnia
16.58
7 korytarz
2.09
8 pomieszczenie techniczne
3.77
9 taras 1
13.93
10 taras 2
3.79
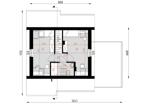
Poddasze
1 korytarz
1.65
2 łazienka
3.61
3 pokój
12.91
4 pokój
12.61
5 schody
3.32

Elewacje

Sytuacja

O autorze projektu D142A - WT2021

4 199 zł

Tylko u nas możesz negocjować cenę!
Skorzystaj z tej możliwości.

Lustrzane odbicie: niedostępne.

Masz dodatkowe pytania?
Zadzwoń lub zamów rozmowę.

Zamów rozmowę

Pomożemy Ci dopasować do twoich potrzeb mymarzony projekt, wpisz swój numer telefonu nasz konsultant oddzwoni.

Negocjuj cenę projektu D142A - WT2021

Zapytaj pytanie o projekt D142A - WT2021

Oceny i komentarze

Napisz swoją opinię