Informujemy, iż nasz sklep internetowy wykorzystuje technologię plików cookies a jednocześnie nie zbiera w sposób automatyczny żadnych informacji, z wyjątkiem informacji zawartych w tych plikach (tzw. „ciasteczkach”).

D143

  • Tylko online

Dane techniczne

powierzchnia
55.28 m²
wysokość
7.03 m
kąt dachu
40 °
szerokość działki
19.1 m
Liczba pokoi
2
Powierzchnia zabudowy
78.8
kondygnacje
parterowe
garaż
bez garażu
dach
dach dwuspadowy
konstrukcja
murowane
zabudowa
domy wolnostojące
piwnica
bez piwnicy
kubatura
476 m³
dostępne odbicie lustrzane
Nie
Pow. użytkowa
55.28 m²
długość działki
16.1 m
Liczba łazienek
1

Opis projektu

Dom D143 jest skierowany do naszych klientów, szukających niewielkiego, nowoczesnego domu parterowego. Prosta, czysta bryła oraz harmonijny podział w elewacjach czynią ten dom klasycznie eleganckim. Podstawowym założeniem przyjętym przy projekcie budynku było stworzenie funkcjonalnego i ciekawego wnętrza na niewielkim metrażu. Jest to budynek z możliwością adaptacji poddasza, kryty dwuspadowym dachem. W elewacji budynku poprzez materiał zaakcentowano wyraźnie, strefę wejściową. W bryle budynku oddzielono także funkcję mieszkalną dzienną od nocnej, jak również strefę mieszkalną i strefy gospodarczej z dużą kotłownią. Wymagana aktualizacja do WT2021 dłuższy czas oczekiwania - 21 dni roboczych

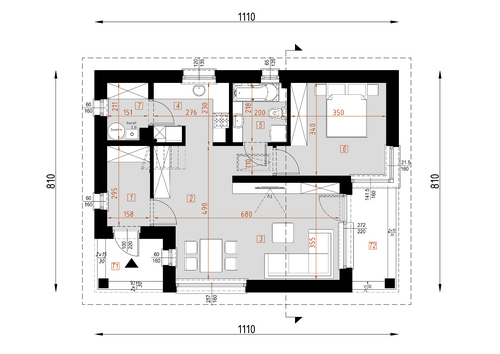
Rzuty

Parter
1 przedsionek
4.41
2 hall
6.79
3 salon / jadalnia
21.24
4 kuchnia
6.02
5 łazienka
4.35
6 sypialnia
12.47
7 pom.techniczne
3.07
8 taras
4.54
9 taras
6.03
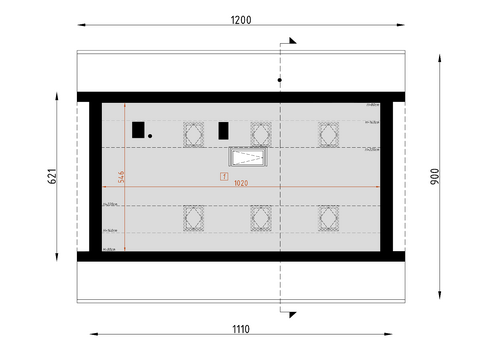
Poddasze
1 strych do adaptacji
31.9

Elewacje

Sytuacja

O autorze projektu D143

3 549 zł

Tylko u nas możesz negocjować cenę!
Skorzystaj z tej możliwości.

Lustrzane odbicie: niedostępne.

Masz dodatkowe pytania?
Zadzwoń lub zamów rozmowę.

Zamów rozmowę

Pomożemy Ci dopasować do twoich potrzeb mymarzony projekt, wpisz swój numer telefonu nasz konsultant oddzwoni.

Negocjuj cenę projektu D143

Zapytaj pytanie o projekt D143

Oceny i komentarze

Napisz swoją opinię