Informujemy, iż nasz sklep internetowy wykorzystuje technologię plików cookies a jednocześnie nie zbiera w sposób automatyczny żadnych informacji, z wyjątkiem informacji zawartych w tych plikach (tzw. „ciasteczkach”).

D143A - WT2021

  • Tylko online

Dane techniczne

powierzchnia
82.99 m²
wysokość
7.03 m
kąt dachu
40 °
szerokość działki
19.1 m
Liczba pokoi
4
Powierzchnia zabudowy
78.56
kondygnacje
z poddaszem użytkowym
garaż
bez garażu
dach
dach dwuspadowy
konstrukcja
murowane
zabudowa
domy wolnostojące
piwnica
bez piwnicy
kubatura
376 m³
dostępne odbicie lustrzane
Nie
Pow. użytkowa
82.99 m²
długość działki
16.1 m
Liczba łazienek
2

Opis projektu

Dom D143A jest skierowany do naszych klientów, szukających niewielkiego, nowoczesnego domu z poddaszem. Prosta, czysta bryła oraz harmonijny podział w elewacjach czynią ten dom klasycznie eleganckim. Podstawowym założeniem przyjętym przy projekcie budynku było stworzenie funkcjonalnego i ciekawego wnętrza na niewielkim metrażu. Jest to budynek z poddaszem użytkowym, kryty dwuspadowym dachem. W elewacji budynku poprzez materiał zaakcentowano wyraźnie, strefę wejściową. W bryle budynku oddzielono także funkcję mieszkalną dzienną od nocnej, jak również strefę mieszkalną i strefy gospodarczej z dużą kotłownią.

Rzuty

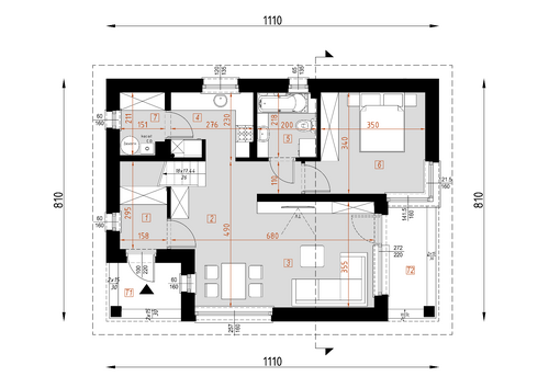
Parter
1 przedsionek
3.75
2 hall
6.79
3 salon / jadalnia
21.24
4 kuchnia
6.02
5 łazienka
4.35
6 sypialnia
12.47
7 pom.techniczne
3.07
8 taras 1
4.33
9 taras 2
5.3
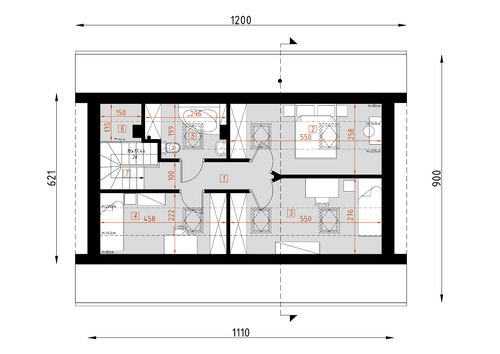
Poddasze
1 korytarz
4.21
2 pokój 1
6.7
3 pokój 2
6.96
4 pokój 3
4.43
5 łazienka
1.92
6 schowek
0.4
7 schody
3.75

Elewacje

Sytuacja

O autorze projektu D143A - WT2021

3 899 zł

Tylko u nas możesz negocjować cenę!
Skorzystaj z tej możliwości.

Lustrzane odbicie: niedostępne.

Masz dodatkowe pytania?
Zadzwoń lub zamów rozmowę.

Zamów rozmowę

Pomożemy Ci dopasować do twoich potrzeb mymarzony projekt, wpisz swój numer telefonu nasz konsultant oddzwoni.

Negocjuj cenę projektu D143A - WT2021

Zapytaj pytanie o projekt D143A - WT2021

Oceny i komentarze

Napisz swoją opinię