Informujemy, iż nasz sklep internetowy wykorzystuje technologię plików cookies a jednocześnie nie zbiera w sposób automatyczny żadnych informacji, z wyjątkiem informacji zawartych w tych plikach (tzw. „ciasteczkach”).

D143B - WT2021

  • Tylko online

Dane techniczne

powierzchnia
84.94 m²
wysokość
7.03 m
kąt dachu
40 °
szerokość działki
19.1 m
Liczba pokoi
4
Powierzchnia zabudowy
78.56
kondygnacje
z poddaszem użytkowym
garaż
bez garażu
dach
dach dwuspadowy
konstrukcja
murowane
zabudowa
domy wolnostojące
piwnica
bez piwnicy
kubatura
476 m³
dostępne odbicie lustrzane
Nie
Pow. użytkowa
84.94 m²
długość działki
16.1 m
Liczba łazienek
2

Opis projektu

Dom D143B WT2021 jest skierowany do naszych klientów, szukających niewielkiego, nowoczesnego domu parterowego z poddaszem. Prosta, czysta bryła oraz harmonijny podział w elewacjach czynią ten dom klasycznie eleganckim. Podstawowym założeniem przyjętym przy projekcie budynku było stworzenie funkcjonalnego i ciekawego wnętrza na niewielkim metrażu. Jest to budynek z poddaszem użytkowym, kryty dwuspadowym dachem. W elewacji budynku poprzez materiał zaakcentowano wyraźnie, strefę wejściową. W bryle budynku oddzielono także funkcję mieszkalną dzienną od nocnej, jak również strefę mieszkalną i strefy gospodarczej z dużą kotłownią.

Rzuty

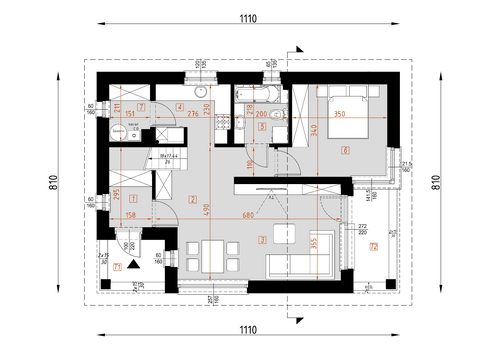
Parter
1 przedsionek
3.75
2 hall
6.79
3 salon / jadalnia
21.24
4 kuchnia
6.02
5 łazienka
4.35
6 sypialnia
12.47
7 kotłownia
3.07
8 taras 1
3
9 taras 2
6.03
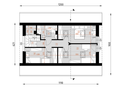
Poddasze
1 korytarz
4.21
2 pokój
7.08
3 pokój
7.93
4 pokój
4.77
5 łazienka
2.13
6 schowek
0.45
7 schody
3.75

Elewacje

Sytuacja

O autorze projektu D143B - WT2021

3 999 zł

Tylko u nas możesz negocjować cenę!
Skorzystaj z tej możliwości.

Lustrzane odbicie: niedostępne.

Masz dodatkowe pytania?
Zadzwoń lub zamów rozmowę.

Zamów rozmowę

Pomożemy Ci dopasować do twoich potrzeb mymarzony projekt, wpisz swój numer telefonu nasz konsultant oddzwoni.

Negocjuj cenę projektu D143B - WT2021

Zapytaj pytanie o projekt D143B - WT2021

Oceny i komentarze

Napisz swoją opinię