Informujemy, iż nasz sklep internetowy wykorzystuje technologię plików cookies a jednocześnie nie zbiera w sposób automatyczny żadnych informacji, z wyjątkiem informacji zawartych w tych plikach (tzw. „ciasteczkach”).

D144D - WT2021

  • Tylko online

Dane techniczne

powierzchnia
76.92 m²
wysokość
7.45 m
kąt dachu
40 °
szerokość działki
21.06 m
Liczba pokoi
4
Powierzchnia zabudowy
101.85
kondygnacje
z poddaszem użytkowym
garaż
z garażem 1 st.
dach
dach czterospadowy
konstrukcja
murowane
zabudowa
domy wolnostojące
piwnica
bez piwnicy
kubatura
408 m³
dostępne odbicie lustrzane
Nie
Pow. użytkowa
76.92 m²
długość działki
17.12 m
Liczba łazienek
2

Opis projektu

Dom D144D WT2021 jest skierowany do naszych klientów, szukających niewielkiego, nowoczesnego domu parterowego z poddaszem użytkowym i garażem. Prosta, czysta bryła oraz harmonijny podział w elewacjach czynią ten dom klasycznie eleganckim. Podstawowym założeniem przyjętym przy projekcie budynku było stworzenie funkcjonalnego i ciekawego wnętrza na niewielkim metrażu.  W elewacji budynku poprzez materiał zaakcentowano wyraźnie, strefę wejściową. W bryle budynku oddzielono także funkcję mieszkalną dzienną od nocnej, jak również strefę mieszkalną od garażu i strefy gospodarczej.

Rzuty

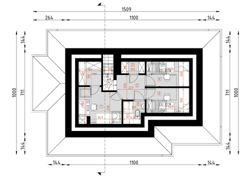
Parter
1 przedsionek
2.43
2 hall
5.06
3 łazienka
3.38
4 sypialnia
10.36
5 kuchnia/spiżarnia
5.64
6 salon / jadalnia
22.16
7 kotłownia
6.03
8 garaż
20.94
9 taras 1
14.7
10 taras 2
3.91
Poddasze
1 schody
3.63
2 hall
4.35
3 garderoba
0.85
4 pokój
4.47
5 pokój
4.47
6 łazienka
1.55
7 pokój
6.57
8 garderoba
2

Elewacje

Sytuacja

O autorze projektu D144D - WT2021

3 999 zł

Tylko u nas możesz negocjować cenę!
Skorzystaj z tej możliwości.

Lustrzane odbicie: niedostępne.

Masz dodatkowe pytania?
Zadzwoń lub zamów rozmowę.

Zamów rozmowę

Pomożemy Ci dopasować do twoich potrzeb mymarzony projekt, wpisz swój numer telefonu nasz konsultant oddzwoni.

Negocjuj cenę projektu D144D - WT2021

Zapytaj pytanie o projekt D144D - WT2021

Oceny i komentarze

2018-03-23

Piękny dom jako propozycja od Archido, kolory są zachwycające. Wszystko ze sobą idealnie współgra. Projekt dopracowany w każdym szczególe. Super, że ta strefa mieszkalna jest oddzielona od kotłowni i garażu

Napisz swoją opinię