Informujemy, iż nasz sklep internetowy wykorzystuje technologię plików cookies a jednocześnie nie zbiera w sposób automatyczny żadnych informacji, z wyjątkiem informacji zawartych w tych plikach (tzw. „ciasteczkach”).

D147

  • Tylko online

Dane techniczne

powierzchnia
73.38 m²
wysokość
7.51 m
kąt dachu
40 °
szerokość działki
20.5 m
Liczba pokoi
2
Powierzchnia zabudowy
136.96
kondygnacje
z poddaszem do adaptacji
garaż
z garażem 1 st.
dach
dach dwuspadowy
konstrukcja
murowane
zabudowa
domy wolnostojące
piwnica
bez piwnicy
kubatura
741 m³
dostępne odbicie lustrzane
Nie
Pow. użytkowa
73.38 m²
długość działki
19.21 m
Liczba łazienek
1

Opis projektu

Dom D147 jest skierowany do naszych klientów, szukających niewielkiego, nowoczesnego domu parterowego z poddaszem do adaptacji i garażem. Prosta, czysta bryła oraz harmonijny podział w elewacjach czynią ten dom klasycznie eleganckim. Podstawowym założeniem przyjętym przy projekcie budynku było stworzenie funkcjonalnego i ciekawego wnętrza na niewielkim metrażu. Jest to budynek z poddaszem użytkowym, kryty dwuspadowym dachem. W elewacji budynku poprzez materiał zaakcentowano wyraźnie, strefę wejściową. W bryle budynku oddzielono także funkcję mieszkalną dzienną od nocnej, jak również strefę mieszkalną i strefy gospodarczej z dużą kotłownią.

Rzuty

Parter
1 przedsionek
3.45
2 hall
2.9
3 kuchnia + spiżarnia
7.35
4 salon+jadalnia
30.25
5 łazienka
5.56
6 pokój
10.87
7 sypialnia
13
8 kotłownia
11.41
9 garaż
21.06
10 taras 1
7.25
11 taras 2
25.32
12 taras 3
4.04
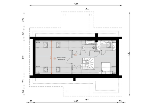
Poddasze
1 strych nieużytkowy
57.42
1 schody
3.93

Elewacje

Sytuacja

O autorze projektu D147

4 299 zł

Tylko u nas możesz negocjować cenę!
Skorzystaj z tej możliwości.

Lustrzane odbicie: niedostępne.

Masz dodatkowe pytania?
Zadzwoń lub zamów rozmowę.

Zamów rozmowę

Pomożemy Ci dopasować do twoich potrzeb mymarzony projekt, wpisz swój numer telefonu nasz konsultant oddzwoni.

Negocjuj cenę projektu D147

Zapytaj pytanie o projekt D147

Oceny i komentarze

Napisz swoją opinię