Informujemy, iż nasz sklep internetowy wykorzystuje technologię plików cookies a jednocześnie nie zbiera w sposób automatyczny żadnych informacji, z wyjątkiem informacji zawartych w tych plikach (tzw. „ciasteczkach”).

D148B

  • Tylko online

Dane techniczne

powierzchnia
60.89 m²
wysokość
6.91 m
kąt dachu
38 °
szerokość działki
19.88 m
Liczba pokoi
1
Powierzchnia zabudowy
88.4
kondygnacje
parterowe
garaż
bez garażu
dach
dach czterospadowy
konstrukcja
murowane
zabudowa
domy wolnostojące
piwnica
bez piwnicy
kubatura
505 m³
dostępne odbicie lustrzane
Nie
Pow. użytkowa
60.89 m²
długość działki
16.38 m
Liczba łazienek
1

Opis projektu

Dom D148B jest skierowany do naszych klientów, szukających niewielkiego, nowoczesnego domu parterowego z możliwością adaptacji nieużytkowego poddasza. Prosta, czysta bryła oraz harmonijny podział w elewacjach czynią ten dom klasycznie eleganckim oraz tańszym w budowie i późniejszej eksploatacji. Podstawowym założeniem przyjętym przy projekcie budynku było stworzenie funkcjonalnego i ciekawego wnętrza na niewielkim metrażu. Jest to budynek parterowy kryty kopertowym dachem z możliwością późniejszej adaptacji poddasza. W elewacji budynku poprzez materiał zaakcentowano wyraźnie, strefę wejściową. W bryle budynku oddzielono także funkcję mieszkalną dzienną od nocnej, jak również strefę mieszkalną od strefy gospodarczej.

Rzuty

Parter
1 przedsionek
3.06
2 hall
5.32
3 kuchnia
7.19
4 jadalnia
8.1
5 salon
21.19
6 łazienka
4.22
7 sypialnia
11.9
8 kotłownia
4.11
9 taras 1
4.68
10 taras 2
6.8
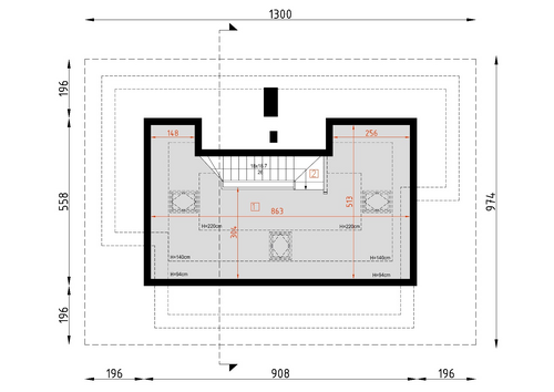
Poddasze
1 strych nieużytkowy
16.21
2 schody
3.96

Elewacje

Sytuacja

O autorze projektu D148B

3 499 zł

Tylko u nas możesz negocjować cenę!
Skorzystaj z tej możliwości.

Lustrzane odbicie: niedostępne.

Masz dodatkowe pytania?
Zadzwoń lub zamów rozmowę.

Zamów rozmowę

Pomożemy Ci dopasować do twoich potrzeb mymarzony projekt, wpisz swój numer telefonu nasz konsultant oddzwoni.

Negocjuj cenę projektu D148B

Zapytaj pytanie o projekt D148B

Oceny i komentarze

Napisz swoją opinię