Informujemy, iż nasz sklep internetowy wykorzystuje technologię plików cookies a jednocześnie nie zbiera w sposób automatyczny żadnych informacji, z wyjątkiem informacji zawartych w tych plikach (tzw. „ciasteczkach”).

D152A - WT2021

  • Tylko online

Dane techniczne

powierzchnia
119.31 m²
wysokość
7.98 m
kąt dachu
40 °
szerokość działki
23.6 m
Liczba pokoi
4
Powierzchnia zabudowy
189.2
kondygnacje
z poddaszem do adaptacji
garaż
z garażem 1 st.
dach
dach dwuspadowy
konstrukcja
murowane
zabudowa
domy wolnostojące
piwnica
bez piwnicy
kubatura
1084 m³
dostępne odbicie lustrzane
Nie
Pow. użytkowa
119.31 m²
długość działki
25.45 m
Liczba łazienek
2

Opis projektu

Dom jednorodzinny parterowy z poddaszem do adaptacji i garażem, niepodpiwniczony. Idealny dla 4-6 osobowej rodziny. Ciekawa, nowoczesna bryła budynku oraz kolorystyka są dużym atutem tego domu. Duży taras oraz wykusz dopełniają całości. Dal zmotoryzowanych członków rodziny zaprojektowana wygodny, jednostanowiskowy garaż. Bardzo funkcjonalny podział pomieszczeń z oddzielną strefą techniczną.

Rzuty

Parter
1 przedsionek
2.96
2 hall
15.13
3 wc
1.9
4 pokój
12.01
5 pokój
12.01
6 łazienka
6.08
7 sypialnia
14.48
8 łazienka
4.6
9 gabinet
11.07
10 salon+jadalnia
21.07
11 kuchnia
16.27
12 spiżarnia
1.73
13 pom.techniczne
3.8
14 garaż
21.6
15 taras 1
6.86
16 taras 2
33.11
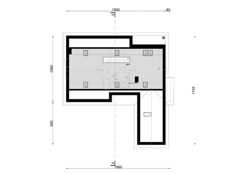
Poddasze
1 strych nieużytkowy
81.3
2 schody
3.56

Elewacje

Sytuacja

O autorze projektu D152A - WT2021

3 999 zł

Tylko u nas możesz negocjować cenę!
Skorzystaj z tej możliwości.

Lustrzane odbicie: niedostępne.

Masz dodatkowe pytania?
Zadzwoń lub zamów rozmowę.

Zamów rozmowę

Pomożemy Ci dopasować do twoich potrzeb mymarzony projekt, wpisz swój numer telefonu nasz konsultant oddzwoni.

Negocjuj cenę projektu D152A - WT2021

Zapytaj pytanie o projekt D152A - WT2021

Oceny i komentarze

Napisz swoją opinię