Informujemy, iż nasz sklep internetowy wykorzystuje technologię plików cookies a jednocześnie nie zbiera w sposób automatyczny żadnych informacji, z wyjątkiem informacji zawartych w tych plikach (tzw. „ciasteczkach”).

D153A

  • Tylko online

Dane techniczne

powierzchnia
86.01 m²
wysokość
7.53 m
kąt dachu
37 °
szerokość działki
17.14 m
Liczba pokoi
4
Powierzchnia zabudowy
72.02
kondygnacje
z poddaszem użytkowym
garaż
bez garażu
dach
dach dwuspadowy
konstrukcja
murowane
zabudowa
domy wolnostojące
piwnica
bez piwnicy
kubatura
433 m³
dostępne odbicie lustrzane
Nie
Pow. użytkowa
86.01 m²
długość działki
15.88 m
Liczba łazienek
2

Opis projektu

Dom mieszkalny jednorodzinny w technologii tradycyjnej. Idealny dla 4-5-osobowej rodziny. Może również pełnić funkcję domku letniskowego. Prosta bryła budynku oraz nieskomplikowana konstrukcja wpływają na niższe koszty budowy. Bardzo funkcjonalny podział pomieszczeń z oddzielną strefą techniczną, strefą dzienną na parterze i nocną na poddaszu.

Rzuty

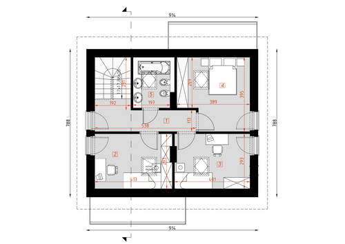
Parter
1 przedsionek
3.58
2 hall
6.12
3 wc
2.68
4 gabinet
8.25
5 salon+jadalnia
17.26
6 kuchnia+spiżarnia
7.02
7 schody
1.1
8 pom.techniczne
3.27
9 taras 1
7.68
10 taras 2
10.28
Poddasze
1 korytarz
7.14
2 pokój 1
8.04
3 pokój 2
7.81
4 pokój 3
10.16
5 łazienka
3.57
6 schody
3.28

Elewacje

Sytuacja

O autorze projektu D153A

4 649 zł

Tylko u nas możesz negocjować cenę!
Skorzystaj z tej możliwości.

Lustrzane odbicie: niedostępne.

Masz dodatkowe pytania?
Zadzwoń lub zamów rozmowę.

Zamów rozmowę

Pomożemy Ci dopasować do twoich potrzeb mymarzony projekt, wpisz swój numer telefonu nasz konsultant oddzwoni.

Negocjuj cenę projektu D153A

Zapytaj pytanie o projekt D153A

Oceny i komentarze

Napisz swoją opinię