Informujemy, iż nasz sklep internetowy wykorzystuje technologię plików cookies a jednocześnie nie zbiera w sposób automatyczny żadnych informacji, z wyjątkiem informacji zawartych w tych plikach (tzw. „ciasteczkach”).

D160 - WT2021

  • Tylko online

Dane techniczne

powierzchnia
142.67 m²
wysokość
8.8 m
kąt dachu
40 °
szerokość działki
24.66 m
Liczba pokoi
5
Powierzchnia zabudowy
146.07
kondygnacje
z poddaszem użytkowym
garaż
z garażem 2 st.
dach
dach czterospadowy
konstrukcja
murowane
zabudowa
domy wolnostojące
piwnica
bez piwnicy
kubatura
720 m³
dostępne odbicie lustrzane
Nie
Pow. użytkowa
142.67 m²
długość działki
17.98 m
Liczba łazienek
2

Opis projektu

Projekt domu D160 to propozycja dla tych inwestorów, którzy poszukują efektownego, wygodnego domu z garażem dwustanowiskowym. Dom D160 posiada użytkowe poddasze i jest dedykowany dla 4-6-osobowej rodziny. Na parterze znajduje się pokój dzienny z bezpośrednim wyjściem do ogrodu, przestrzennie połączony z jadalnią i kuchnią. Funkcji mieszkalnej dopełniają spiżarnia oraz toaleta. Dwustanowiskowy garaż dostępny jest poprzez kotłownię. Na poddaszu znajdują się cztery przestronne sypialnie, dwie, wygodne łazienki oraz strych, który można zaadaptować na dodatkowy pokój.

Rzuty

Parter
1 przedsionek
3.66
2 hall
7.52
3 kuchnia
9.14
4 spiżarnia
1.3
5 salon / jadalnia
34.29
6 pokój
11.61
7 łazienka
3.28
8 kotłownia
6.74
9 garaż
34.17
10 taras 1
5.77
11 taras 2
5.02
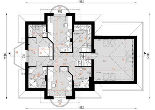
Poddasze
1 korytarz
6.51
2 pokój 1
6.9
3 pokój 2
16.45
4 garderoba
2.13
5 sypialnia
12.89
6 łazienka
4.11
7 pokój 3
13.95
8 łazienka
4.92
9 schody
4.01
10 strych nieużytkowy
26.92
11 balkon 1
1.94
12 balkon 2
1.94
13 balkon 3
4.54

Elewacje

Sytuacja

O autorze projektu D160 - WT2021

5 299 zł

Tylko u nas możesz negocjować cenę!
Skorzystaj z tej możliwości.

Lustrzane odbicie: niedostępne.

Masz dodatkowe pytania?
Zadzwoń lub zamów rozmowę.

Zamów rozmowę

Pomożemy Ci dopasować do twoich potrzeb mymarzony projekt, wpisz swój numer telefonu nasz konsultant oddzwoni.

Negocjuj cenę projektu D160 - WT2021

Zapytaj pytanie o projekt D160 - WT2021

Oceny i komentarze

Napisz swoją opinię