Informujemy, iż nasz sklep internetowy wykorzystuje technologię plików cookies a jednocześnie nie zbiera w sposób automatyczny żadnych informacji, z wyjątkiem informacji zawartych w tych plikach (tzw. „ciasteczkach”).

D180 - Lidka WT2021

  • Tylko online

Dane techniczne

powierzchnia
44.78 m²
wysokość
5.14 m
kąt dachu
23 °
szerokość działki
21 m
Liczba pokoi
3
Powierzchnia zabudowy
87.9
kondygnacje
parterowe
garaż
z garażem 1 st.
dach
dach dwuspadowy
konstrukcja
murowane
zabudowa
domy wolnostojące
piwnica
bez piwnicy
kubatura
369.18 m³
dostępne odbicie lustrzane
Nie
Pow. użytkowa
44.78 m²
długość działki
14.56 m
Liczba łazienek
1

Opis projektu

Prezentowany dom jest jednym z najtańszych w budowie i eksploatacji. Przeznaczony jest dla trzyosobowej rodziny. Może też pełnić funkcję wygodnego domu letniego. Szeroki okap dachu chroni taras przed zbytnim nasłonecznieniem jak również umożliwia korzystanie z niego podczas deszczu. Dom posiada wygodny układ funkcjonalny z podziałem na część dzienną obejmującą kuchnię, i pokój dzienny oraz część nocną z pokojami sypialnymi i łazienką. Możliwe jest oddzielenie kuchni od pokoju dziennego.

Rzuty

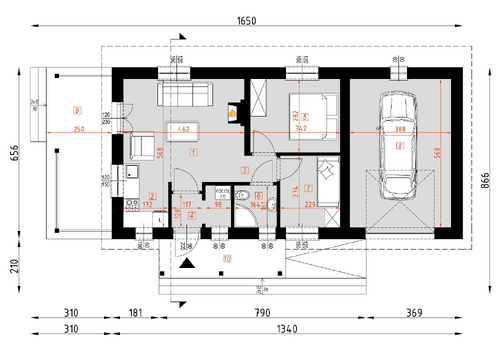
Parter
1 pokój dzienny
18.13
2 kuchnia
4.14
3 hall
1.26
4 przedsionek
3.08
5 sypialnia
9.64
6 łazienka
2.26
7 sypialnia
6.27
8 garaż
22.03
9 taras
18.11
10 ganek
16.59

Elewacje

Sytuacja

O autorze projektu D180 - Lidka WT2021

3 199 zł

Tylko u nas możesz negocjować cenę!
Skorzystaj z tej możliwości.

Lustrzane odbicie: niedostępne.

Masz dodatkowe pytania?
Zadzwoń lub zamów rozmowę.

Zamów rozmowę

Pomożemy Ci dopasować do twoich potrzeb mymarzony projekt, wpisz swój numer telefonu nasz konsultant oddzwoni.

Negocjuj cenę projektu D180 - Lidka WT2021

Zapytaj pytanie o projekt D180 - Lidka WT2021

Oceny i komentarze

Napisz swoją opinię