Informujemy, iż nasz sklep internetowy wykorzystuje technologię plików cookies a jednocześnie nie zbiera w sposób automatyczny żadnych informacji, z wyjątkiem informacji zawartych w tych plikach (tzw. „ciasteczkach”).

D181 - Celina WT2021

  • Tylko online

Dane techniczne

powierzchnia
44.32 m²
wysokość
5.14 m
kąt dachu
23 °
szerokość działki
17.68 m
Liczba pokoi
2
Powierzchnia zabudowy
60.06
kondygnacje
parterowe
garaż
bez garażu
dach
dach dwuspadowy
konstrukcja
murowane
zabudowa
domy wolnostojące
piwnica
bez piwnicy
kubatura
237 m³
dostępne odbicie lustrzane
Nie
Pow. użytkowa
44.32 m²
długość działki
14.56 m
Liczba łazienek
1

Opis projektu

Dom mieszkalny jednorodzinny, wolnostojący. Parter składa się ze stosunkowo dużego pokoju dziennego połączonego z korytarzem prowadzącym do pokoi oraz sieni wejściowej, dwóch pokoi sypialnych, kuchni, łazienki i pomieszczenia technicznego.

Rzuty

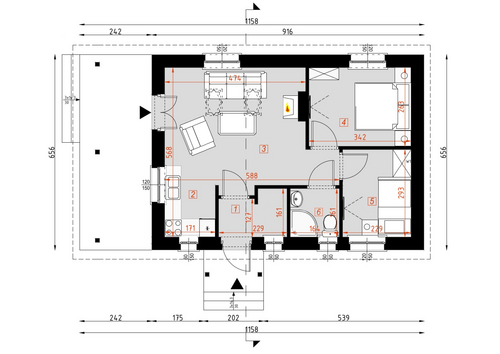
Parter
1 przedsionek
3.22
2 kuchnia
3
3 salon
19.8
4 pokój
9
5 pokój
6.7
6 łazienka
2.6
7 taras
4.07
8 taras
17.62

Elewacje

Sytuacja

O autorze projektu D181 - Celina WT2021

3 199 zł

Tylko u nas możesz negocjować cenę!
Skorzystaj z tej możliwości.

Lustrzane odbicie: niedostępne.

Masz dodatkowe pytania?
Zadzwoń lub zamów rozmowę.

Zamów rozmowę

Pomożemy Ci dopasować do twoich potrzeb mymarzony projekt, wpisz swój numer telefonu nasz konsultant oddzwoni.

Negocjuj cenę projektu D181 - Celina WT2021

Zapytaj pytanie o projekt D181 - Celina WT2021

Oceny i komentarze

Napisz swoją opinię