Informujemy, iż nasz sklep internetowy wykorzystuje technologię plików cookies a jednocześnie nie zbiera w sposób automatyczny żadnych informacji, z wyjątkiem informacji zawartych w tych plikach (tzw. „ciasteczkach”).

D182A - WT2021

  • Tylko online

Dane techniczne

powierzchnia
85.21 m²
wysokość
7.37 m
kąt dachu
45 °
szerokość działki
13.82 m
Liczba pokoi
4
Powierzchnia zabudowy
76.1
kondygnacje
z poddaszem użytkowym
garaż
bez garażu
dach
dach dwuspadowy
konstrukcja
murowane
zabudowa
domy wolnostojące
piwnica
bez piwnicy
kubatura
430 m³
dostępne odbicie lustrzane
Nie
Pow. użytkowa
85.21 m²
długość działki
19.15 m
Liczba łazienek
2

Opis projektu

Dom mieszkalny jednorodzinny wolnostojący, parterowy z poddaszem użytkowym. Parter składa się z pokoju dziennego połączonego z kuchnią, łazienki, pokoju sypialnego oraz pomieszczenia technicznego dostępnego z drugiej strony domu. Na poddaszu znajdują się 3 pokoje. Budynek idealny na wąską działkę.

Rzuty

Parter
1 przedsionek
1.8
2 hall
3.32
3 pokój dzienny/ aneks kuchenny
22.74
4 pokój
11.22
5 spiżarnia
2.06
6 schody
3.14
7 łazienka
6.87
8 kotłownia
5.93
9 taras 1
4.8
10 taras 2
4.16
11 taras 3
14.12
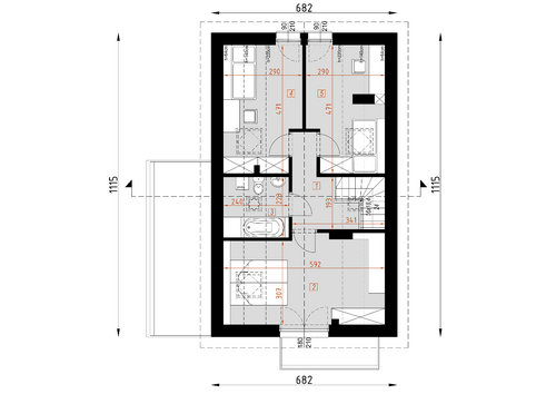
Poddasze
1 korytarz
5.01
2 pokój 1
11.6
3 łazienka
2.77
4 pokój 2
7.38
5 pokój 3
7.3

Elewacje

Sytuacja

O autorze projektu D182A - WT2021

4 399 zł

Tylko u nas możesz negocjować cenę!
Skorzystaj z tej możliwości.

Lustrzane odbicie: niedostępne.

Masz dodatkowe pytania?
Zadzwoń lub zamów rozmowę.

Zamów rozmowę

Pomożemy Ci dopasować do twoich potrzeb mymarzony projekt, wpisz swój numer telefonu nasz konsultant oddzwoni.

Negocjuj cenę projektu D182A - WT2021

Zapytaj pytanie o projekt D182A - WT2021

Oceny i komentarze

Napisz swoją opinię