Informujemy, iż nasz sklep internetowy wykorzystuje technologię plików cookies a jednocześnie nie zbiera w sposób automatyczny żadnych informacji, z wyjątkiem informacji zawartych w tych plikach (tzw. „ciasteczkach”).

D186 - wersja drewniana WT2021

  • Tylko online

Dane techniczne

powierzchnia
146.1 m²
wysokość
7.73 m
kąt dachu
38 °
szerokość działki
24.72 m
Liczba pokoi
5
Powierzchnia zabudowy
141.37
kondygnacje
z poddaszem użytkowym
garaż
z garażem 2 st.
dach
dach dwuspadowy
konstrukcja
szkieletowe
zabudowa
domy wolnostojące
piwnica
bez piwnicy
kubatura
800 m³
dostępne odbicie lustrzane
Nie
Pow. użytkowa
146.1 m²
długość działki
18.05 m
Liczba łazienek
3

Opis projektu

D186 wersja drewniana to dom mieszkalny jednorodzinny w technologii szkieletu drewnianego. Idealny dla 4-5-osobowej rodziny. Może również pełnić funkcję domku letniskowego. Prosta bryła budynku oraz nieskomplikowana konstrukcja wpływają na niższe koszty budowy. Bardzo funkcjonalny podział pomieszczeń z oddzielną strefą techniczną, strefą dzienną na parterze i nocną na poddaszu. Nad garażem zostało wydzielone mieszkanie.

Rzuty

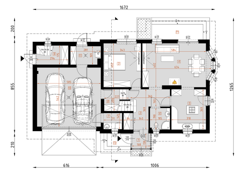
Parter
1 wiatrołap
2.31
2 hall
9.67
3 pokój
13.79
4 salon
24.5
5 kuchnia
11.74
6 łazienka
3.62
7 pralnia
2.54
8 spiżarnia
2.97
9 przedsionek
2.89
10 garaż
31.67
11 kotłownia
4.57
12 taras1
10.61
13 taras2
4.91
Poddasze
1 schody+schowek
6.09
2 korytarz
4.22
3 pokój
10.3
4 pokój
13.07
5 pokój
7.09
6 łazienka
3.24
7 schody
3.91
8 salon
10.95
9 kuchnia
3.54
10 pokój
5.71
11 łazienka
4.01

Elewacje

Sytuacja

O autorze projektu D186 - wersja drewniana WT2021

4 890 zł

Tylko u nas możesz negocjować cenę!
Skorzystaj z tej możliwości.

Lustrzane odbicie: niedostępne.

Masz dodatkowe pytania?
Zadzwoń lub zamów rozmowę.

Zamów rozmowę

Pomożemy Ci dopasować do twoich potrzeb mymarzony projekt, wpisz swój numer telefonu nasz konsultant oddzwoni.

Negocjuj cenę projektu D186 - wersja drewniana WT2021

Zapytaj pytanie o projekt D186 - wersja drewniana WT2021

Oceny i komentarze

Napisz swoją opinię