Informujemy, iż nasz sklep internetowy wykorzystuje technologię plików cookies a jednocześnie nie zbiera w sposób automatyczny żadnych informacji, z wyjątkiem informacji zawartych w tych plikach (tzw. „ciasteczkach”).

D187A - Szymon A WT2021

  • Tylko online

Dane techniczne

powierzchnia
107.41 m²
wysokość
7.41 m
kąt dachu
45 °
szerokość działki
20.95 m
Liczba pokoi
4
Powierzchnia zabudowy
93.05
kondygnacje
z poddaszem użytkowym
garaż
bez garażu
dach
dach dwuspadowy
konstrukcja
murowane
zabudowa
domy wolnostojące
piwnica
bez piwnicy
kubatura
510 m³
dostępne odbicie lustrzane
Nie
Pow. użytkowa
107.41 m²
długość działki
15.37 m
Liczba łazienek
2

Opis projektu

D187A Szymon wersja A to niewielki, ale bardzo funkcjonalny dom jednorodzinny. Dzięki swoim wymiarom polecany na wąską działkę. Mieści aż cztery pokoje sypialne, obszerny pokój dzienny połączony z kuchnią, duże pomieszczenie techniczne oraz łazienkę. Na poddaszu znajdują się dwa pokoje sypialne i łazienka.

Rzuty

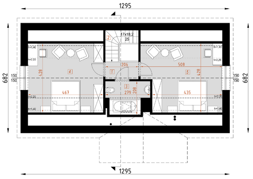
Parter
1 wiatrołap
3.05
2 hall
4.33
3 łazienka
2.96
4 kuchnia
6.34
5 pokój dzienny
23.54
6 sypialnia
14
7 sypialnia
8
8 schody
1.34
9 pomieszczenie techniczne
5.64
10 taras
11.75
11 ganek
3.57
Poddasze
1 korytarz
2.22
2 schody
1.9
3 łazienka
3.61
4 sypialnia
15.15
5 sypialnia
15.33

Elewacje

Sytuacja

O autorze projektu D187A - Szymon A WT2021

3 999 zł

Tylko u nas możesz negocjować cenę!
Skorzystaj z tej możliwości.

Lustrzane odbicie: niedostępne.

Masz dodatkowe pytania?
Zadzwoń lub zamów rozmowę.

Zamów rozmowę

Pomożemy Ci dopasować do twoich potrzeb mymarzony projekt, wpisz swój numer telefonu nasz konsultant oddzwoni.

Negocjuj cenę projektu D187A - Szymon A WT2021

Zapytaj pytanie o projekt D187A - Szymon A WT2021

Oceny i komentarze

Napisz swoją opinię