Informujemy, iż nasz sklep internetowy wykorzystuje technologię plików cookies a jednocześnie nie zbiera w sposób automatyczny żadnych informacji, z wyjątkiem informacji zawartych w tych plikach (tzw. „ciasteczkach”).

D199 - Paula wersja drewniana WT2021

  • Tylko online

Dane techniczne

powierzchnia
92.38 m²
wysokość
7.27 m
kąt dachu
40 °
szerokość działki
20.76 m
Liczba pokoi
4
Powierzchnia zabudowy
93.49
kondygnacje
z poddaszem użytkowym
garaż
z garażem 1 st.
dach
dach dwuspadowy
konstrukcja
szkieletowe
zabudowa
domy wolnostojące
piwnica
bez piwnicy
kubatura
514 m³
dostępne odbicie lustrzane
Nie
Pow. użytkowa
92.38 m²
długość działki
15.24 m
Liczba łazienek
2

Opis projektu

Dom w konstrukcji drewnianej, szkieletowej tzw. "kanadyjskiej". Parter składa się z pokoju dziennego (z kominkiem i wyjściem do ogrodu poprzez taras), pokoju, kuchni, łazienki, przedsionka oraz garażu jednostanowiskowym.Poddasze składa się z hallu, łazienki i dwóch pokoi sypialnych . Podstawowym założeniem przyjętym przy projekcie budynku było harmonijne wpisanie się w naturalny krajobraz i podjęcie kontynuacji tradycyjnego budownictwa wiejskiego. Jest to budynek parterowy, z poddaszem użytkowym, kryty dwuspadowym dachem. W elewacji budynku poprzez materiał zaakcentowano wyraźnie, strefę wejściową. W bryle budynku oddzielono także funkcję mieszkalną od garażu i gospodarczej.

Rzuty

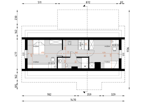
Parter
1 przedsionek
2.62
2 salon
25.57
3 kuchnia
4.65
4 pokój 1
9.92
5 łazienka
6.53
6 garaż
25.31
7 schody
1
8 taras 1
22.27
9 taras 2
3.78
Poddasze
1 hall
5.77
2 łazienka
4.89
3 pokój
15.28
4 pokój
13.55
5 schody
2.6

Elewacje

Sytuacja

O autorze projektu D199 - Paula wersja drewniana WT2021

4 399 zł

Tylko u nas możesz negocjować cenę!
Skorzystaj z tej możliwości.

Lustrzane odbicie: niedostępne.

Masz dodatkowe pytania?
Zadzwoń lub zamów rozmowę.

Zamów rozmowę

Pomożemy Ci dopasować do twoich potrzeb mymarzony projekt, wpisz swój numer telefonu nasz konsultant oddzwoni.

Negocjuj cenę projektu D199 - Paula wersja drewniana WT2021

Zapytaj pytanie o projekt D199 - Paula wersja drewniana WT2021

Oceny i komentarze

Napisz swoją opinię