Informujemy, iż nasz sklep internetowy wykorzystuje technologię plików cookies a jednocześnie nie zbiera w sposób automatyczny żadnych informacji, z wyjątkiem informacji zawartych w tych plikach (tzw. „ciasteczkach”).

D20 - Kazimierz wersja drewniana

  • Tylko online

Dane techniczne

powierzchnia
51.59 m²
wysokość
5.32 m
kąt dachu
25 °
szerokość działki
17.51 m
Liczba pokoi
3
Powierzchnia zabudowy
65.78
kondygnacje
parterowe
garaż
bez garażu
dach
dach dwuspadowy
konstrukcja
szkieletowe
zabudowa
domy wolnostojące
piwnica
bez piwnicy
kubatura
257 m³
dostępne odbicie lustrzane
Nie
Pow. użytkowa
51.59 m²
długość działki
14.91 m
Liczba łazienek
1

Opis projektu

Prezentowany dom jest jednym z najtańszych w budowie i eksploatacji. Przeznaczony jest dla trzy - czteroosobowej rodziny. Może też pełnić funkcję wygodnego domu letniego. Szeroki okap dachu chroni taras przed zbytnim nasłonecznieniem jak również umożliwia korzystanie z niego podczas deszczu. Dom posiada wygodny układ funkcjonalny z podziałem na część dzienną obejmującą kuchnię, i pokój dzienny oraz część nocną z pokojami sypialnymi i łazienką. Możliwe jest oddzielenie kuchni od pokoju dziennego. Od strony sypialni możliwa jest dobudowa garażu lub wiaty na samochód.

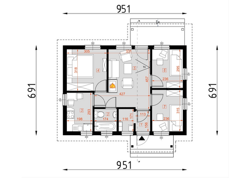
Rzuty

Parter
1 przedsionek
3.85
2 łazienka
2.96
3 kuchnia
5.82
4 pokój
9.72
5 pokój dzienny i hall
14.77
6 pokój
7.01
7 pokój
7.46

Elewacje

Sytuacja

O autorze projektu D20 - Kazimierz wersja drewniana

3 399 zł

Tylko u nas możesz negocjować cenę!
Skorzystaj z tej możliwości.

Lustrzane odbicie: niedostępne.

Masz dodatkowe pytania?
Zadzwoń lub zamów rozmowę.

Zamów rozmowę

Pomożemy Ci dopasować do twoich potrzeb mymarzony projekt, wpisz swój numer telefonu nasz konsultant oddzwoni.

Negocjuj cenę projektu D20 - Kazimierz wersja drewniana

Zapytaj pytanie o projekt D20 - Kazimierz wersja drewniana

Oceny i komentarze

2019-11-26

Idealny – niski, parterowy, wszystke podstawowe pomieszczenia są. Jak budżet jest ograniczono to chyba najlepsza opcja, jaką znaleźliśmy na archido. Z zewnątrz nam się naprawdę podoba, pod tym względem nie widać oszczędności i to jest super.

Napisz swoją opinię