Informujemy, iż nasz sklep internetowy wykorzystuje technologię plików cookies a jednocześnie nie zbiera w sposób automatyczny żadnych informacji, z wyjątkiem informacji zawartych w tych plikach (tzw. „ciasteczkach”).

D221 - WT2021

  • Tylko online

Dane techniczne

powierzchnia
104.83 m²
wysokość
7.72 m
kąt dachu
37 °
szerokość działki
20.95 m
Liczba pokoi
4
Powierzchnia zabudowy
122.8
kondygnacje
z poddaszem użytkowym
garaż
z garażem 1 st.
dach
dach dwuspadowy
konstrukcja
murowane
zabudowa
domy wolnostojące
piwnica
bez piwnicy
kubatura
624 m³
dostępne odbicie lustrzane
Nie
Pow. użytkowa
104.83 m²
długość działki
16.75 m
Liczba łazienek
2

Opis projektu

Nowoczesny dom z poddaszem użytkowym. Idealny dla 3-4 osobowej rodziny.  Wnętrzej jest niezwykle funkcjonalne i przytulne. Wyraźnie wydzielono strefę dzienną na parterze od strefy nocnej na poddaszu. Dużym atutem tego projektu jest pokój na parteże mogący pełnić funkcję gabinetu/biura oraz przestronny taras nad garażem. Dom mieszkalny jednorodzinny, wolnostojący, z garażem, parterowy, z poddaszem użytkowym, niepodpiwniczony. Parter składa się z pokoju dziennego (z kominkiem i wyjściem do ogrodu poprzez taras), pokoju, kuchni, WC, kotłowni, hallu ze schodami prowadzącymi na poddasze mieszkalne. Piętro składa się z trzech sypialni, hallu i łazienki. Ogrzewanie na piec gazowy. Projekt spełnia wymagania cieplne dla WT2021  

Rzuty

Parter
1 przedsionek
1.83
2 hall
7.11
3 spiżarnia
2.05
4 kuchnia
9.62
5 salon
22.35
6 pokój
13.27
7 toaleta
2.43
8 pom.techniczne
4.79
9 garaż
29.43
10 taras 1
11.07
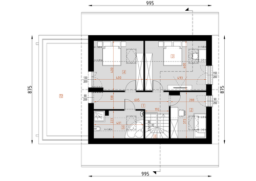
Poddasze
1 hall
9.1
2 pokój
7.3
3 sypialnia
14.17
4 sypialnia
11.31
5 toaleta
4.29
6 taras 2
24.95

Elewacje

Sytuacja

O autorze projektu D221 - WT2021

3 600 zł

Tylko u nas możesz negocjować cenę!
Skorzystaj z tej możliwości.

Lustrzane odbicie: niedostępne.

Masz dodatkowe pytania?
Zadzwoń lub zamów rozmowę.

Zamów rozmowę

Pomożemy Ci dopasować do twoich potrzeb mymarzony projekt, wpisz swój numer telefonu nasz konsultant oddzwoni.

Negocjuj cenę projektu D221 - WT2021

Zapytaj pytanie o projekt D221 - WT2021

Oceny i komentarze

Napisz swoją opinię