Informujemy, iż nasz sklep internetowy wykorzystuje technologię plików cookies a jednocześnie nie zbiera w sposób automatyczny żadnych informacji, z wyjątkiem informacji zawartych w tych plikach (tzw. „ciasteczkach”).

D49 - Maurycy z garażem WT2021

  • Tylko online

Dane techniczne

powierzchnia
66.36 m²
wysokość
6.46 m
kąt dachu
25 °
szerokość działki
22.91 m
Liczba pokoi
3
Powierzchnia zabudowy
125.3
kondygnacje
parterowe
garaż
z garażem 1 st.
dach
dach dwuspadowy
konstrukcja
murowane
zabudowa
domy wolnostojące
piwnica
bez piwnicy
kubatura
497.46 m³
dostępne odbicie lustrzane
Nie
Pow. użytkowa
66.36 m²
długość działki
18.12 m
Liczba łazienek
1

Opis projektu

Dom mieszkalny, jednorodzinny, parterowy, 3 pokoje, kuchnia i łazienka, oraz duży zadaszony taras od strony wejściowej. Tani w budowie dom w technologii tradycyjnej dla czteroosobowej rodziny. Układ funkcjonalny domu: Do domu wchodzimy poprzez duży taras mogący pełnić przeróżne funkcje. Następnie przez małą sień przechodzimy do hallu połączonego z salonem. W hallu znajduje się duża szafa pełniąca funkcje garderoby. Obszerna kuchnia również połączona jest z salonem. Dalej wchodzimy do korytarza, z którego dostać się możemy do trzech sypialni i obszernej łazienki. Dom posiada jednostanowiskowy garaż oraz kotłownię na paliwo stałe. Dom ten jest również świetnym wyborem na dom letniskowy.

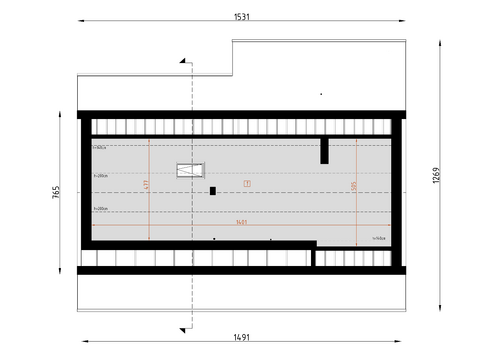
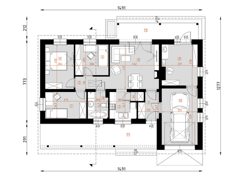
Rzuty

Parter
1 sień
4.14
2 korytarz
3.68
3 kuchnia/spiżarnia
6.55
4 pokój dzienny
18.56
5 sypialnia
8.66
6 sypialnia
10.85
7 pokój
9.38
8 łazienka
4.54
9 kotłownia
12.07
10 garaż
17.15
11 taras ogrodowy
18.03
12 taras frontowy
25.58
Poddasze
1 nieużytkowe
0

Elewacje

Sytuacja

O autorze projektu D49 - Maurycy z garażem WT2021

3 849 zł

Tylko u nas możesz negocjować cenę!
Skorzystaj z tej możliwości.

Lustrzane odbicie: niedostępne.

Masz dodatkowe pytania?
Zadzwoń lub zamów rozmowę.

Zamów rozmowę

Pomożemy Ci dopasować do twoich potrzeb mymarzony projekt, wpisz swój numer telefonu nasz konsultant oddzwoni.

Negocjuj cenę projektu D49 - Maurycy z garażem WT2021

Zapytaj pytanie o projekt D49 - Maurycy z garażem WT2021

Oceny i komentarze

Napisz swoją opinię