Informujemy, iż nasz sklep internetowy wykorzystuje technologię plików cookies a jednocześnie nie zbiera w sposób automatyczny żadnych informacji, z wyjątkiem informacji zawartych w tych plikach (tzw. „ciasteczkach”).
Polubione projekty0
()
Przepraszam!
Nie znaleziono danych. Dodaj do ulubionych pierwszy.
Prezentowany dom jest jednym z najtańszych w budowie i eksploatacji. Mały dom o minimalnym programie dla czteroosobowej rodziny. Może też pełnić funkcję wygodnego domu letniego. Czytelny i wygodny podział na część dzienną i nocną. Wygodny układ pokoju dziennego połączonego z aneksem kuchennym i mającym wyjście na duży zadaszony taras. Dodatkowe duże poddasze nieużytkowe dostępne przez zsuwane schody daje możliwość adaptacji na cele mieszkalne. Zminimalizowane powierzchnie komunikacyjne dopełniają pełną wygodę i funkcjonalność zawartą w niezbędnej przestrzeni. Możliwe jest oddzielenie kuchni od pokoju dziennego. Od strony sypialni możliwa jest dobudowa garażu lub wiaty na samochód. Możliwe jest ogrzewanie domu kominkiem w oparciu o system kanałów rozprowadzających ciepłe powietrze i centrali rozdzielczej.
Rzuty
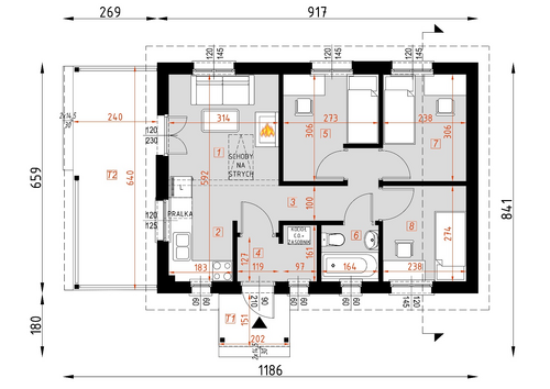
Parter
1
pokój dzienny
10.75
2
kuchnia
4.38
3
korytarz
5.3
4
przedsionek
3.2
5
sypialnia
7.3
6
łazienka
2.63
7
sypialnia
7.28
8
sypialnia
6.5
9
taras 1
3.1
10
taras 2
15.35
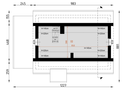
Poddasze
1
strych do adaptacji
24.9
Elewacje
Sytuacja
O autorze projektu D58 - Ewelina wersja drewniana WT2021
Ewelina- jak ja ją widzę? Jako klasyczny projekt, rozplanowany na kształcie prostokąta, bez udziwnień, więc budowa powinna pójść jak po maśle. Kuchnia tuż przy salonie, w salonie kominek i wyjście na urokliwy taras. 3 sypialnie, w co aż nie dowierzam jak patrze tylko na wizualizacje a nie na rzuty. Dla mnie bardzo fajna propozycja!
Prezentowany dom jest jednym z najtańszych w budowie i eksploatacji. Mały dom o minimalnym programie dla czteroosobowej rodziny. Może też pełnić funkcję wygodnego domu letniego. Czytelny i wygodny podział na część dzienną i nocną. Wygodny układ pokoju dziennego połączonego z aneksem kuchennym i mającym wyjście na duży zadaszony taras. Dodatkowe duże poddasze nieużytkowe dostępne przez zsuwane schody daje możliwość adaptacji na cele mieszkalne. Zminimalizowane powierzchnie komunikacyjne dopełniają pełną wygodę i funkcjonalność zawartą w niezbędnej przestrzeni. Możliwe jest oddzielenie kuchni od pokoju dziennego. Od strony sypialni możliwa jest dobudowa garażu lub wiaty na samochód. Możliwe jest ogrzewanie domu kominkiem w oparciu o system kanałów rozprowadzających ciepłe powietrze i central
Ewelina- jak ja ją widzę? Jako klasyczny projekt, rozplanowany na kształcie prostokąta, bez udziwnień, więc budowa powinna pójść jak po maśle. Kuchnia tuż przy salonie, w salonie kominek i wyjście na urokliwy taras. 3 sypialnie, w co aż nie dowierzam jak patrze tylko na wizualizacje a nie na rzuty. Dla mnie bardzo fajna propozycja!