Informujemy, iż nasz sklep internetowy wykorzystuje technologię plików cookies a jednocześnie nie zbiera w sposób automatyczny żadnych informacji, z wyjątkiem informacji zawartych w tych plikach (tzw. „ciasteczkach”).

D61 - WT2021

  • Tylko online

Dane techniczne

powierzchnia
201.21 m²
wysokość
8.21 m
kąt dachu
30 °
szerokość działki
29.36 m
Liczba pokoi
5
Powierzchnia zabudowy
218.76
kondygnacje
z poddaszem użytkowym
garaż
z garażem 1 st.
dach
dach dwuspadowy
konstrukcja
murowane
zabudowa
domy wolnostojące
piwnica
bez piwnicy
kubatura
995 m³
dostępne odbicie lustrzane
Nie
Pow. użytkowa
201.21 m²
długość działki
22.59 m
Liczba łazienek
4

Opis projektu

Dom mieszkalny dwulokalowy, parterowy z poddaszem użytkowym. Idealny dla 4-6-osobowej rodziny. Nowoczesna bryła i cekawe rozwiązania czynią ten dom wyjątkowym. Bardzo funkcjonalny podział pomieszczeń z oddzielną strefą techniczną, strefą dzienną i nocną. Atutem tego projektu jest również nowoczesny wygląd elewacji oraz ogromny taras.

Rzuty

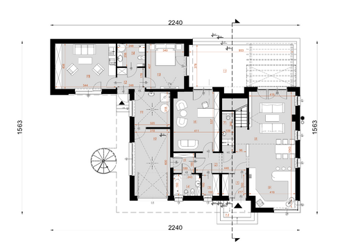
Parter
1 wiatrołap
4.08
2 hall
9
3 garderoba
2.91
4 łazienka
4.54
5 korytarz
3.3
6 pokój
21.58
7 łazienka
3.53
8 salon+jadalnia
30.02
9 kuchnia
14.05
10 garaż
18.94
11 kotłownia
10
12 korytarz
4.6
13 pokój
13.67
14 łazienka
4.82
15 pokój
21.96
16 taras 1
43.74
17 taras 2
6.97
Poddasze
1 hall
9.89
2 pokój
19.52
3 kuchnia
4.66
4 garderoba
4.13
5 łazienka
4.54
6 sypialnia
12.83
7 schody
7.58
8 taras
45.11

Elewacje

Sytuacja

O autorze projektu D61 - WT2021

4 599 zł

Tylko u nas możesz negocjować cenę!
Skorzystaj z tej możliwości.

Lustrzane odbicie: niedostępne.

Masz dodatkowe pytania?
Zadzwoń lub zamów rozmowę.

Zamów rozmowę

Pomożemy Ci dopasować do twoich potrzeb mymarzony projekt, wpisz swój numer telefonu nasz konsultant oddzwoni.

Negocjuj cenę projektu D61 - WT2021

Zapytaj pytanie o projekt D61 - WT2021

Oceny i komentarze

Napisz swoją opinię