Informujemy, iż nasz sklep internetowy wykorzystuje technologię plików cookies a jednocześnie nie zbiera w sposób automatyczny żadnych informacji, z wyjątkiem informacji zawartych w tych plikach (tzw. „ciasteczkach”).

D64 - Tomasz WT2021 wersja drewniana

  • Tylko online

Dane techniczne

powierzchnia
117.83 m²
wysokość
8.96 m
kąt dachu
43 °
szerokość działki
18.61 m
Liczba pokoi
5
Powierzchnia zabudowy
82.02
kondygnacje
z poddaszem użytkowym
garaż
bez garażu
dach
dach dwuspadowy
konstrukcja
szkieletowe
zabudowa
domy wolnostojące
piwnica
bez piwnicy
kubatura
565 m³
dostępne odbicie lustrzane
Nie
Pow. użytkowa
117.83 m²
długość działki
16.21 m
Liczba łazienek
2

Opis projektu

Budynek jednorodzinny z poddaszem użytkowym i dużym tarasem od strony ogrodu. Po wejściu do domu znajdujemy się w małej sieni, z której przechodzimy do hallu z widokiem na duże okna w salonie. Na uwagę zasługuje fakt, że centralnie umieszczony komin wraz z ciągiem kuchennym można obejść dookoła, co jest bardzo cenne w odbiorze przestrzennym domu. Z hall-u bezpośrednio możemy dostać się do pomieszczenia technicznego, kuchni, pokoju, łazienki. Możemy również klatką schodową wejść na piętro, gdzie znajdują się dwie obszerne sypialnie jednoosobowe i łazienka, oraz sypialnia dwuosobowa oraz oddzielna garderoba.

Rzuty

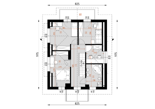
Parter
1 wiatrołap
2.38
2 hol
7.27
3 łazienka
4.91
4 pomieszczenie techniczne
3.87
5 kuchnia
8.5
6 pokój dzienny+aneks jadalny
28.17
7 pokój
8.65
8 schody
3.32
9 taras 1
5.19
10 taras 2
10.29
Poddasze
1 hol
8.37
2 pracownia
5.94
3 łazienka
6.14
4 pokój 1
9.15
5 pokój 2
13.27
6 pokój 3
11.76
7 balkon
6.64

Elewacje

Sytuacja

O autorze projektu D64 - Tomasz WT2021 wersja drewniana

4 249 zł

Tylko u nas możesz negocjować cenę!
Skorzystaj z tej możliwości.

Lustrzane odbicie: niedostępne.

Masz dodatkowe pytania?
Zadzwoń lub zamów rozmowę.

Zamów rozmowę

Pomożemy Ci dopasować do twoich potrzeb mymarzony projekt, wpisz swój numer telefonu nasz konsultant oddzwoni.

Negocjuj cenę projektu D64 - Tomasz WT2021 wersja drewniana

Zapytaj pytanie o projekt D64 - Tomasz WT2021 wersja drewniana

Oceny i komentarze

Napisz swoją opinię