Informujemy, iż nasz sklep internetowy wykorzystuje technologię plików cookies a jednocześnie nie zbiera w sposób automatyczny żadnych informacji, z wyjątkiem informacji zawartych w tych plikach (tzw. „ciasteczkach”).

D83 - Martyna WT2021 wersja drewniana

  • Tylko online

Dane techniczne

powierzchnia
158.41 m²
wysokość
7.64 m
kąt dachu
34 °
szerokość działki
22.85 m
Liczba pokoi
5
Powierzchnia zabudowy
134.8
kondygnacje
z poddaszem użytkowym
garaż
z garażem 1 st.
dach
dach dwuspadowy
konstrukcja
szkieletowe
zabudowa
domy wolnostojące
piwnica
bez piwnicy
kubatura
789 m³
dostępne odbicie lustrzane
Nie
Pow. użytkowa
158.41 m²
długość działki
17.45 m
Liczba łazienek
2

Opis projektu

Dom parterowy z poddaszem użytkowym. Parter składa się z obszernego pokoju dziennego, kuchni z jadalnią, jednej sypialni, łazienki ogólnodostępnej i garażu połączonego korytarzem z parterem domu. Schodami z hallu wejściowego dostajemy się na poddasze, na którym umiejscowione cztery sypialnie i łazienka. Główna sypialnia połączona jest z garderobą.

Rzuty

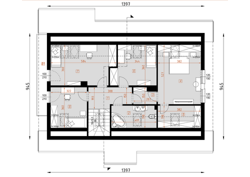
Parter
1 przedsionek
2.17
2 hall
8.77
3 kuchnia
13.8
4 salon
27.23
5 łazienka
5.93
6 pokój
14.65
7 korytarz
2.93
8 garaż
22.59
9 pomieszczenie techniczne
10.22
Poddasze
1 korytarz
6.64
2 łazienka
6.03
3 korytarz
2.77
4 sypialnia
18.34
5 garderoba
5.75
6 sypialnia
11.82
7 sypialnia
16.88
8 sypialnia
10.1
9 schody
4.6

Elewacje

Sytuacja

O autorze projektu D83 - Martyna WT2021 wersja drewniana

4 499 zł

Tylko u nas możesz negocjować cenę!
Skorzystaj z tej możliwości.

Lustrzane odbicie: niedostępne.

Masz dodatkowe pytania?
Zadzwoń lub zamów rozmowę.

Zamów rozmowę

Pomożemy Ci dopasować do twoich potrzeb mymarzony projekt, wpisz swój numer telefonu nasz konsultant oddzwoni.

Negocjuj cenę projektu D83 - Martyna WT2021 wersja drewniana

Zapytaj pytanie o projekt D83 - Martyna WT2021 wersja drewniana

Oceny i komentarze

Napisz swoją opinię