Informujemy, iż nasz sklep internetowy wykorzystuje technologię plików cookies a jednocześnie nie zbiera w sposób automatyczny żadnych informacji, z wyjątkiem informacji zawartych w tych plikach (tzw. „ciasteczkach”).

D87A - WT2021

  • Tylko online

Dane techniczne

powierzchnia
141.64 m²
wysokość
7.91 m
kąt dachu
20 °
szerokość działki
18.22 m
Liczba pokoi
4
Powierzchnia zabudowy
124.87
kondygnacje
piętrowe
garaż
z garażem 1 st.
dach
dach czterospadowy
konstrukcja
murowane
zabudowa
domy wolnostojące
piwnica
bez piwnicy
kubatura
684 m³
dostępne odbicie lustrzane
Nie
Pow. użytkowa
141.64 m²
długość działki
21.6 m
Liczba łazienek
2

Opis projektu

Jeśli szukają Państwo niepowtarzalnego domu piętrowego to projekt D87 WT2021 będzie idealną propozycją. Dom bez wątpienia wyróżnia się spośród innych projektów domów jednorodzinnych. Nowoczesna bryła wzbogacona o niebanalne dodatki architektoniczne tworzy zaskakujący efekt. Garaż jednostanowiskowy jest wkomponowany w bryłę domu w ścianie bocznej wraz z dużym pomieszczenie technicznym idealnym dla majsterkującego Pana Domu. Od strony ogrodu do budynku przylega rozległy taras z kominkiem i miejscem do grillowania, który będzie doskonałym miejscem wypoczynku w ciepłe, słoneczne dni. Piękny efekt wizualny tworzy kremowa kolorystyka elewacji połączona z naturalnymi elementami – drewnem i kamieniem.

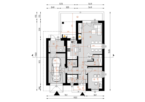
Rzuty

Parter
1 przedsionek
2.86
2 garderoba
3.26
3 hall
9.23
4 gabinet
11.31
5 wc
2.46
6 schowek
1.4
7 kuchnia
7.39
8 salon / jadalnia
28.15
9 pom. techniczne
7.07
10 garaż
18.76
11 taras 1
27.44
12 taras 2
3.68
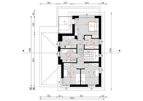
Poddasze
1 korytarz
7.17
1 pokój 1
12.34
1 pokój 2
13.36
1 łazienka
7.7
1 pralnia
6.7
1 garderoba
6.1
1 sypialnia
16.5
1 schody
5.71
1 balkon
8.21

Sytuacja

O autorze projektu D87A - WT2021

3 999 zł

Tylko u nas możesz negocjować cenę!
Skorzystaj z tej możliwości.

Lustrzane odbicie: niedostępne.

Masz dodatkowe pytania?
Zadzwoń lub zamów rozmowę.

Zamów rozmowę

Pomożemy Ci dopasować do twoich potrzeb mymarzony projekt, wpisz swój numer telefonu nasz konsultant oddzwoni.

Negocjuj cenę projektu D87A - WT2021

Zapytaj pytanie o projekt D87A - WT2021

Oceny i komentarze

Napisz swoją opinię