Informujemy, iż nasz sklep internetowy wykorzystuje technologię plików cookies a jednocześnie nie zbiera w sposób automatyczny żadnych informacji, z wyjątkiem informacji zawartych w tych plikach (tzw. „ciasteczkach”).

Daria A1

Lustrzane odbicie
  • Tylko online

Dane techniczne

powierzchnia
137.2 m²
wysokość
8.7 m
kąt dachu
40 °
szerokość działki
25.8 m
Liczba pokoi
6
Powierzchnia zabudowy
161
kondygnacje
z poddaszem użytkowym
garaż
z garażem 2 st.
dach
dach dwuspadowy
konstrukcja
murowane
zabudowa
domy wolnostojące
piwnica
bez piwnicy
kubatura
647 m³
dostępne odbicie lustrzane
Tak
Pow. użytkowa
137.2 m²
długość działki
17.7 m
Liczba łazienek
2
Powierzchnia dachu
267.5 m²

Opis projektu

Projekt Daria to dom jednorodzinny wolnostojący z wbudowanym garażem, przeznaczony dla 4 osobowej rodziny.

Rzuty

Parter
1. wiatrołap
5,8 m2
2. spiżarnia
2,1 m2
3. kuchnia
9,5 m2
4. salon z jadalnią
34,9 m2
5. schody
4,0 m2
6. łazienka
4,5 m2
7. komunikacja
1,7 m2
8. pralnia*
7,5 m2
9. pokój
13,4 m2
10. kotłownia*
11,0 m2
11. garaż*
32,3 m2
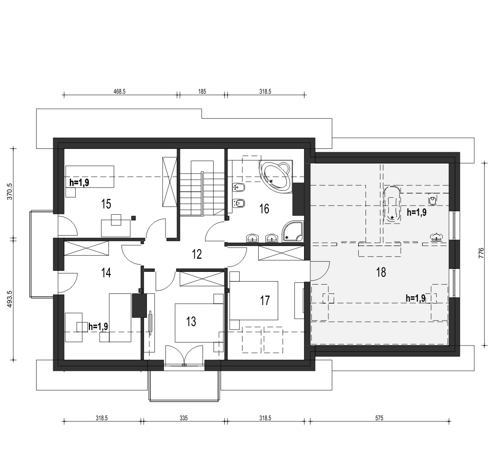
Piętro
12. przedpokój
5,9 m2
13. sypialnia
11,2 (12,0) m2
14. sypialnia
11,9 (15,3) m2
15. sypialnia
12,3 (17,2) m2
16. łazienka
8,4 (11,7) m2
17. sypialnia
11,7 (15,0) m2
18. strych*
22,8 (44,2) m2

Sytuacja

Przekrój

O autorze projektu Daria A1

4 790 zł

Tylko u nas możesz negocjować cenę!
Skorzystaj z tej możliwości.

Lustrzane odbicie: dostępne.

Masz dodatkowe pytania?
Zadzwoń lub zamów rozmowę.

Zamów rozmowę

Pomożemy Ci dopasować do twoich potrzeb mymarzony projekt, wpisz swój numer telefonu nasz konsultant oddzwoni.

Negocjuj cenę projektu Daria A1

Wersja projektu:

Zapytaj pytanie o projekt Daria A1

Wersja projektu:

Oceny i komentarze

Napisz swoją opinię