- Tylko online
Masz pytania? Chciałbyś negocjować cenę
Zadzwoń! 577 575 011
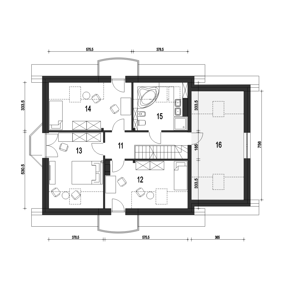
Dom Dla Ciebie 1 w wariancie z przybudowanym garażem to projekt domu z poddaszem użytkowym z nowej serii projektów stylowych naszego autorstwa. Ten uroczy dom przeznaczony jest dla 4ro osobowej rodziny , zaprojektowany jest z zachowaniem podziału na dwie strefy: dzienną na parterze i nocną na poddaszu. Na parterze mamy zaprojektowany wiatrołap w którym mamy miejsce na wnękowe szafy, następnie mamy hol z którego dostaniemy sie do kuchni ze spiżarnią, do salonu z jadalnią i kominkiem oraz pokoju usytuowanego od frontu, który może być wykorzystywany jako gabinet. Przy schodach mamy zaprojektowaną łazienkę z prysznicem oraz przejściową pralnię z której dostaniemy się do garażu oraz kotłowni. Poddasze obejmuje trzy ustawne i dobrze doświetlone pokoje, każdy pokój z własnym balkonem. Przy schodach zaprojektowano ogólnie dostępną łazienkę z narożną wanną i prysznicem. Nad garażem mamy do dyspozycji strych który można wykorzystać na etapie adaptacji jako dodatkowe pomieszczenie np.: pokój, garderobę lub pomieszczenie rekreacyjne. Poddasze zaprojektowane jest pod dwuspadowym dachem opartym na tradycyjnej więźbie i ściance kolankowej. Projekt Dom Dla Ciebie 1, to idealna propozycją domu dla osób poszukujących tradycyjnego domu o stylowej architekturze i przemyślanej funkcji.fundamenty: BETONOWE ściany zewnętrzne: POROTHERM+STYROPIAN TERMO ORGANIKA rodzaj stropu: TERIVA I elewacje: TYNK STRUKTURALNY, OKŁADZINA KLINKIEROWA pokrycie dachu: DACHÓWKA CEMENTOWA, CERAMICZNA lub BLACHA DACHÓWKO PODOBNA
