- Tylko online
Masz pytania? Chciałbyś negocjować cenę
Zadzwoń! 577 575 011
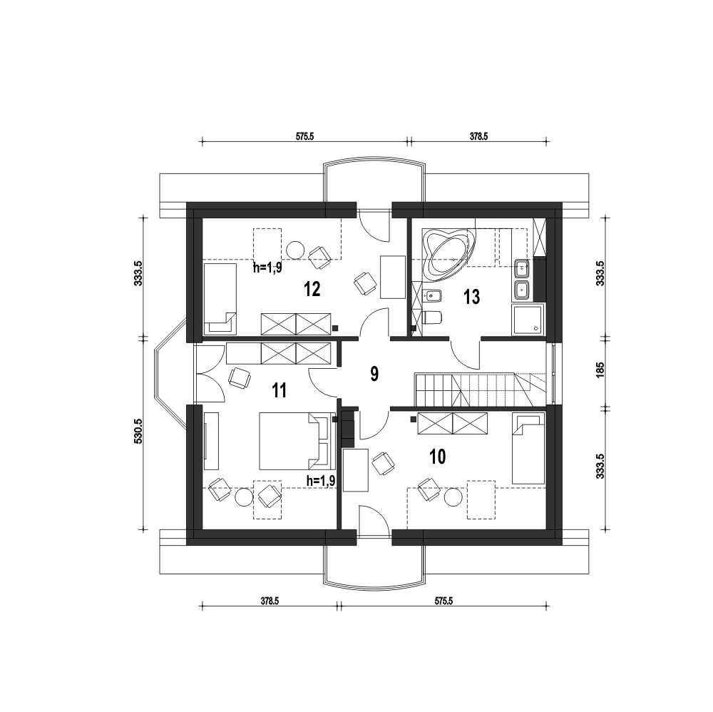
Dom Dla Ciebie 1 w wariancie bez garażu to dom z serii domów stylowych. Ten projekt uroczego domu z poddaszem użytkowym jest przeznaczony dla 4ro osobowej rodziny. Dom zaprojektowany został z zachowaniem podziału na dwie strefy: ogólnie dostępną i prywatną. Strefa ogólnie dostępna przewidziana jest na parterze. mamy tu wiatrołap z wnękowymi szafami, hol, kuchnię ze spiżarnią, salon z jadalnią i kominkiem oraz pokój od frontu, który może służyć jako gabinet. Ponadto mamy tu niedużą łazienkę z prysznicem oraz kotłownię z pralnią. Na poddasze prowadzą jednobiegowe schody, którymi ostaniemy się do przedpokoju prowadzącego do 3 wygodnych i dobrze oświetlonych pokoi z balkonami. Ponadto jest tu przewidziana ogólnie dostępną łazienka z narożną wanną i prysznicem. Poddasze wygospodarowano pod dwuspadowym dachem zaprojektowanym na tradycyjnej więźbie dachowej opartej na ściance kolankowej. Projekt domu Dom Dla Ciebie 1, to propozycja dla szukających projektu domu tradycyjnego o stylowej architekturze oraz funkcjonalnym wnętrzu.
