- Tylko online
Masz pytania? Chciałbyś negocjować cenę
Zadzwoń! 577 575 011
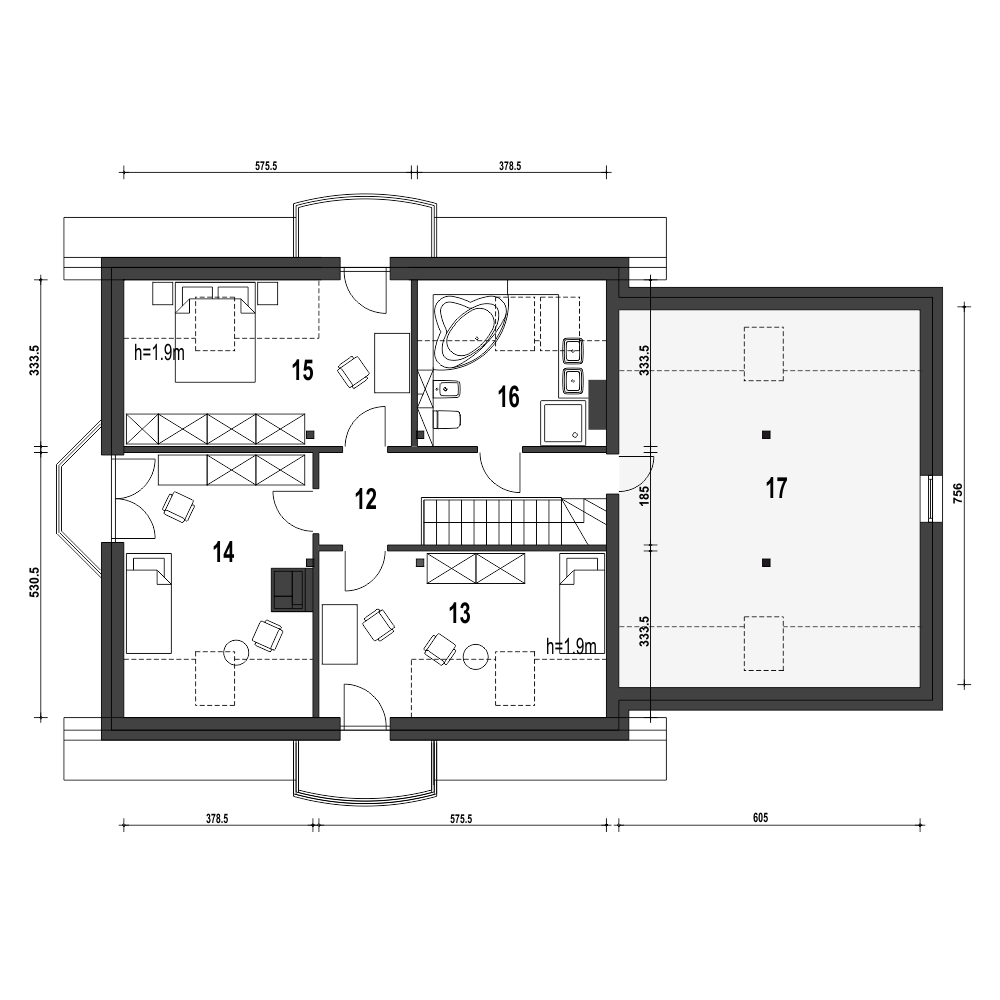
Dom Dla Ciebie 1 w3 z garażem dwustanowiskowym przeznaczony jest dla 4-5cio osobowej rodziny. Zaprojektowany jest z zachowaniem podziału na dwie strefy: dzienną na parterze i nocną na poddaszu. Na parterze mamy zaprojektowany wiatrołap, hol, kuchnię, salon z jadalnią i kominkiem oraz pokój usytuowanego od strony ogrodowej. Przy schodach mamy zaprojektowaną łazienkę z wanną oraz osobna pralnię. Obok mamy wejście do dwustanowiskowego garażu oraz kotłowni. Poddasze obejmuje trzy ustawne i dobrze doświetlone pokoje, każdy pokój z własnym balkonem. Na poddaszu zaprojektowano ogólnie dostępną łazienkę z narożną wanną i prysznicem. Nad garażem mamy do dyspozycji strych, który można wykorzystać na etapie adaptacji jako dodatkowe pomieszczenie (pokój, garderobę lub pomieszczenie rekreacyjne). Poddasze zaprojektowane jest pod dwuspadowym dachem o układzie kalenicowym, opartym na tradycyjnej więźbie dachowej i ściance kolankowej wys 0,9m. Projekt Dom Dla Ciebie 1 w3, to idealna propozycja domu dla osób poszukujących domu energooszczędnego, o stylowej architekturze i przemyślanej funkcji.
