- Tylko online
Masz pytania? Chciałbyś negocjować cenę
Zadzwoń! 577 575 011
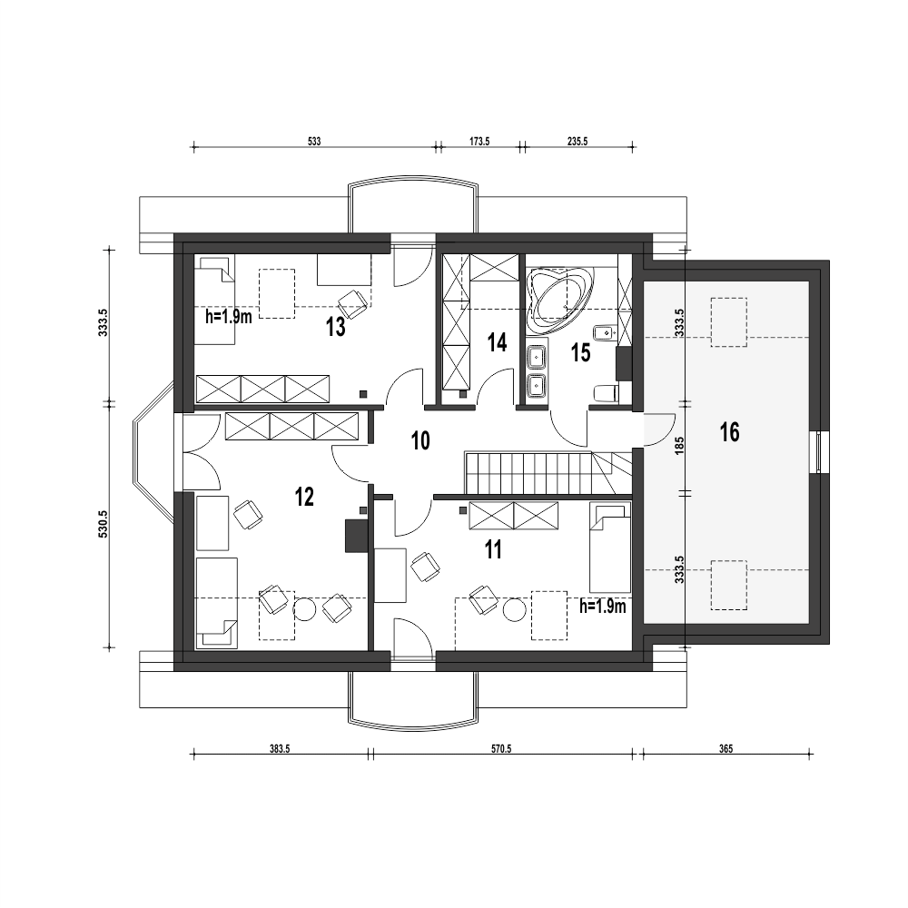
Dom Dla Ciebie 1 w 4 bez garażu przeznaczony jest dla 4 ro osobowej rodziny , zaprojektowany jest z zachowaniem podziału na dwie strefy: dzienną na parterze i nocną na poddaszu. Na parterze mamy zaprojektowany wiatrołap, hol, kuchnię, salon z jadalnią i kominkiem oraz pokój usytuowanego od strony ogrodowej. Od frontu zaprojektowano łazienkę z wanną. Poddasze obejmuje trzy ustawne i dobrze doświetlone pokoje, każdy pokój z własnym balkonem. Na poddaszu zaprojektowano ogólnie dostępną łazienkę z narożną wanną i prysznicem. Poddasze zaprojektowane jest pod dwuspadowym dachem opartym na tradycyjnej więźbie i ściance kolankowej. Projekt Dom Dla Ciebie 1 w4, to idealna propozycją domu dla osób poszukujących tradycyjnego domu o stylowej architekturze i przemyślanej funkcji.fundamenty: BETONOWE ściany zewnętrzne: POROTHERM+STYROPIAN TERMO ORGANIKA rodzaj stropu: TERIVA I elewacje: TYNK STRUKTURALNY, OKŁADZINA KLINKIEROWA pokrycie dachu: DACHÓWKA CEMENTOWA, CERAMICZNA lub BLACHA DACHÓWKO PODOBNA
